Vuokrataan toimistotilat - Helsinki
Bulevardi 6, 00120 Helsinki #10856388
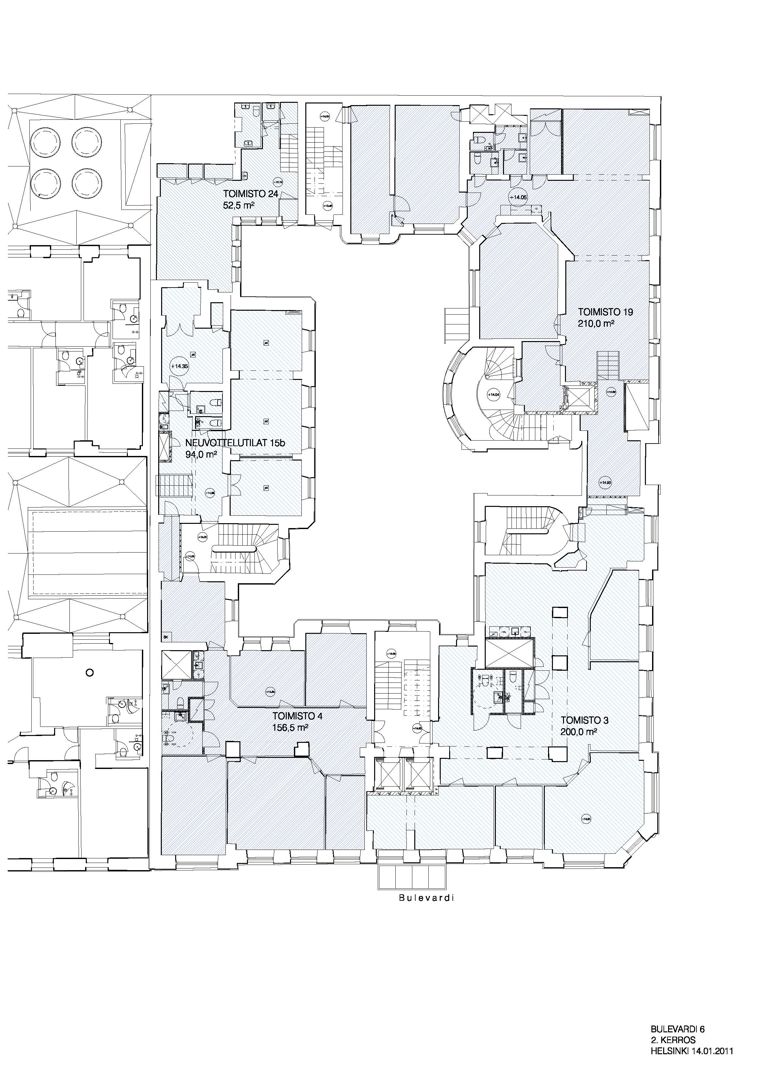
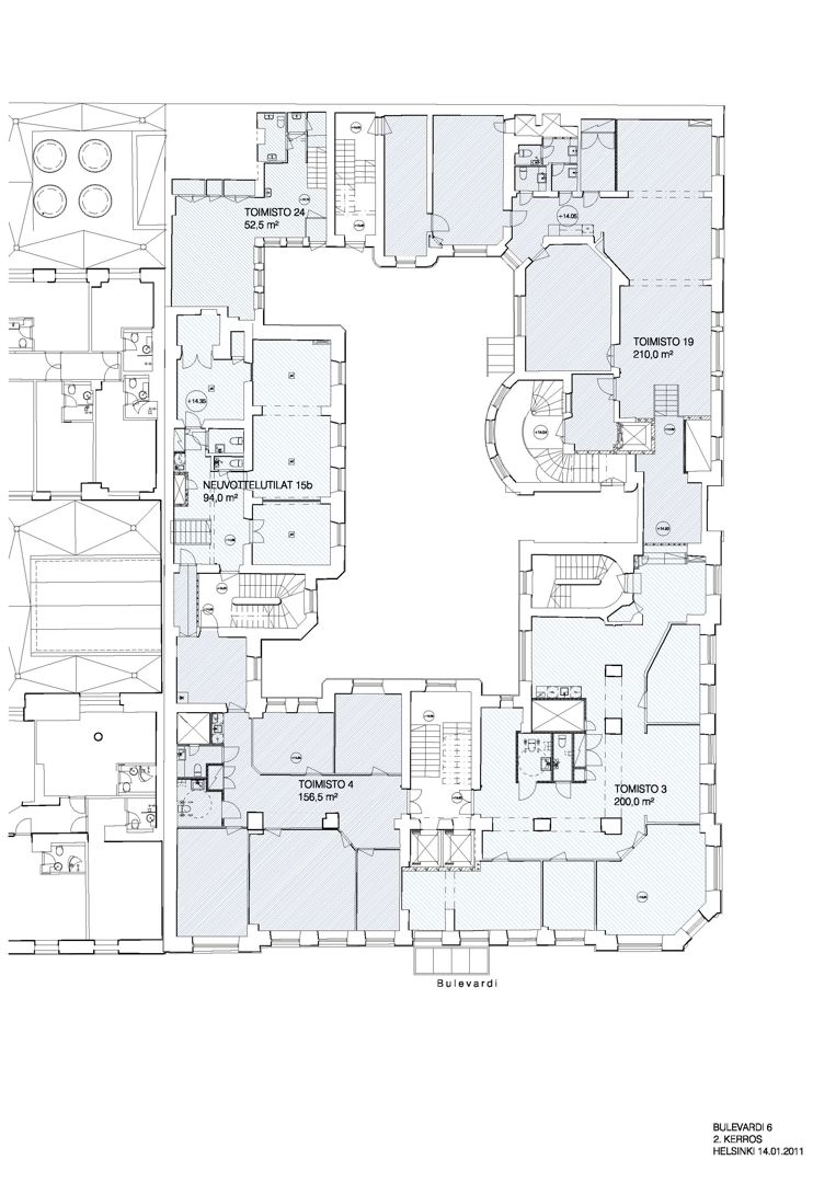
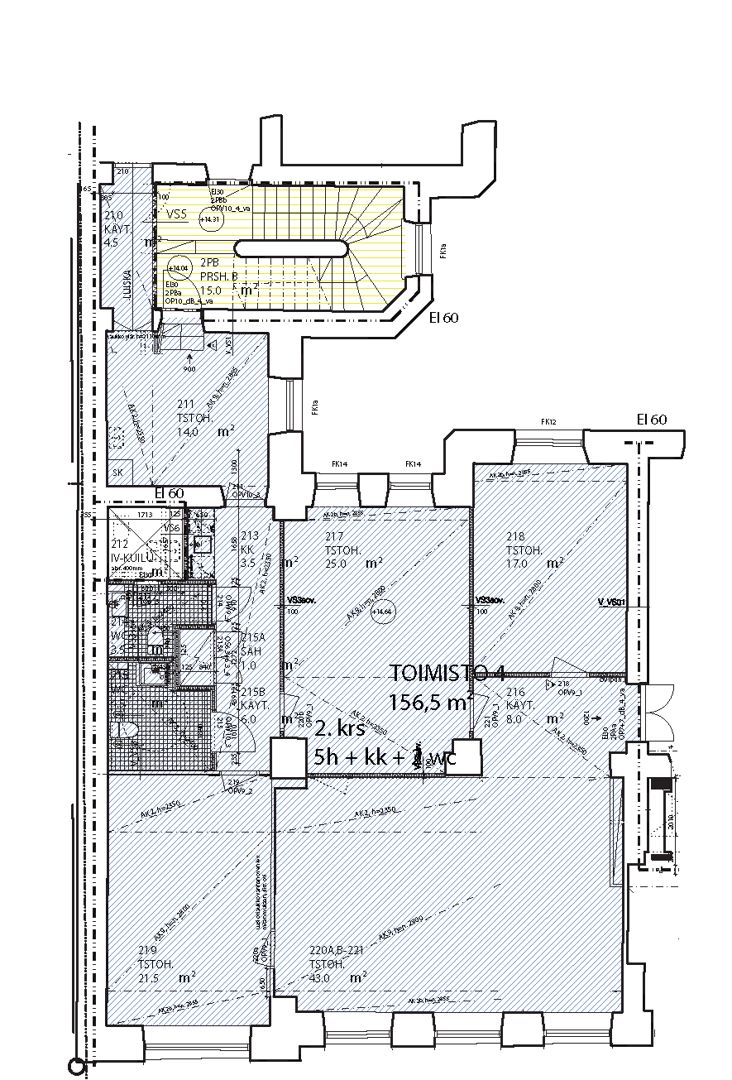
Vuokrattavana 156,5 m2 toimistotila Bulevardilta. Toimisto sijaitsee 2. kerroksessa, johon saavutaan hissillä upean pääsisäänkäynnin kautta Bulevardilta. Tila käsittää 5 valoisaa huonetilaa, joista yksi on iso yhteistila, sekä toimistokeittiön ja laadukkaat sosiaalitilat. Toimitilan ikkunat avaavat upean näkymän Bulevardille. Tilassa on jäähdytetty koneellinen ilmastointi ja Cat 6a-tasoiset IT-valmiudet. Kaikissa tiloissa on parkettilattiat.
Bulevardin Kulmassa voit pysäköidä suoraan rakennuksen alapuolelle. Q-Park-pysäköintihalli tarjoaa peräti 600 autopaikkaa sekä suoran pääsyn Bulevardi 2-4:een omalla katutason hissillä. Lämpimässä hallissa on mahdollisuus pysäköintiin niin lyhytaikaisesti kuin pidemmälläkin sopimuksella.
Pyöräilijöille on rakennettu erilliset suihku- ja sosiaalitilat kiinteistön kellaritiloihin.
Bulevardin ja Yrjönkadun kulmauksessa sijaitseva kiinteistö on rakennettu vuonna 1888 ja sen on suunnitellut arkkitehti Theodor Granstedt.
Kiinteistössä on vuokrattavissa neuvottelukeskus kaikilla Hotelli Klaus K:n palveluilla. Kevyen liikenteen suosijoille kiinteistöön on erilliset suihku- ja sosiaalitilat. Huoneisto ja koko kiinteistö on saneerattu vuonna 2011 kestävän kehityksen periaatteita noudattaen.
