Vuokrataan toimistotilat - Oulu
Elektroniikkatie 2, 90590 Oulu #10856379
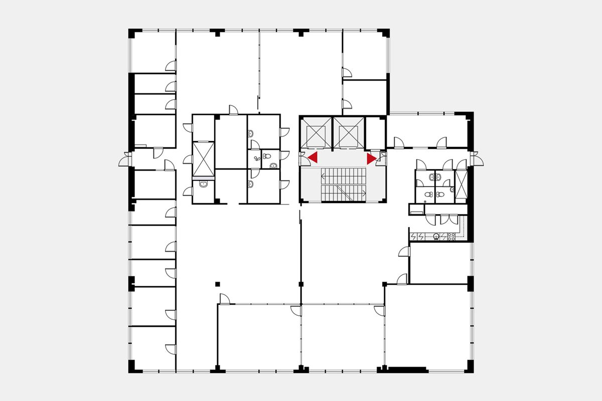
Vuokrataan 4.kerroksen avotila-/combitoimisto Technopolis Linnanmaan Elektroniikkatiellä. Tila on kuluvalvottu ja siihen kuuluu avotilaa, erikokoisia työ- ja neuvotteluhuoneita sekä wc- ja keittiötilat. Huonekohtainen jäähdytys takaa miellyttävän työskentelylämpötilan ympäri vuoden. Ilmoitettu neliömäärä sisältää jyvityksen kiinteistön yhteisistä tiloista.
Kiinteistö sijaitsee hyvällä paikalla noin 10 minuutin ajomatkan päässä Oulun keskustasta. Ilmoitettu neliömäärä sisältää jyvityksen kiinteistön yhteisistä tiloista.
Lisätietoja numerosta 020 7290 710. Lisää kohteita osoitteessa www.premises.fi.
Kohteella ei ole lain edellyttämää energiatodistusta tai energialuokka ei tiedossa.Kerros: 4
CRE PREMISES
Puh. Näytä puhelinnumero 020 7290 710
Vantaankoskentie 14
01670 VANTAA
