Vuokrataan toimistotilat - Tampere
Hermiankatu 3A, 33720 Tampere #10856373
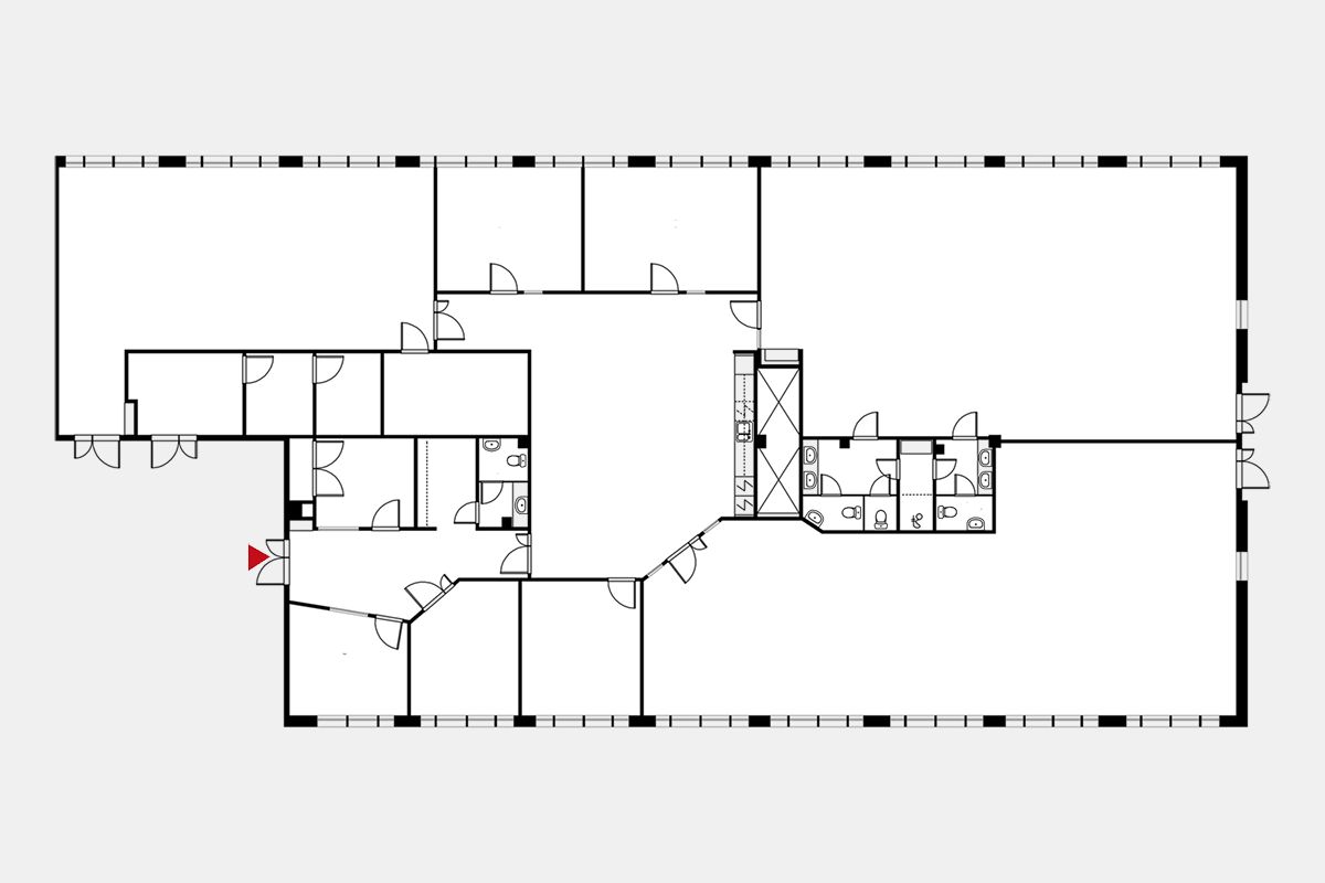
Valoisa toimisto Hermiasta. Hermia tarjoaa vuokralaisilleen kattavat palvelut.
Kiinteistö sijaitsee loistavien liikenneyhteyksien varrella Tampereen Hervannassa.
Lisätiedot ja kohde-esittelyt 020 7290 710, lisää kohteita premises.fi
Kohteella ei ole lain edellyttämää energiatodistusta.Kerros: 4
Osoite
Hermiankatu 3A, 33720 Tampere
Tilatyyppi
Toimistotilaa
518 m2
Ota yhteyttä
CRE PREMISES
Puh. Näytä puhelinnumero 020 7290 710
Vantaankoskentie 14
01670 VANTAA
Pyydä lisätietoa
