Vuokrataan toimistotilat - Oulu
Teknologiantie 5, 90590 Oulu #10856341
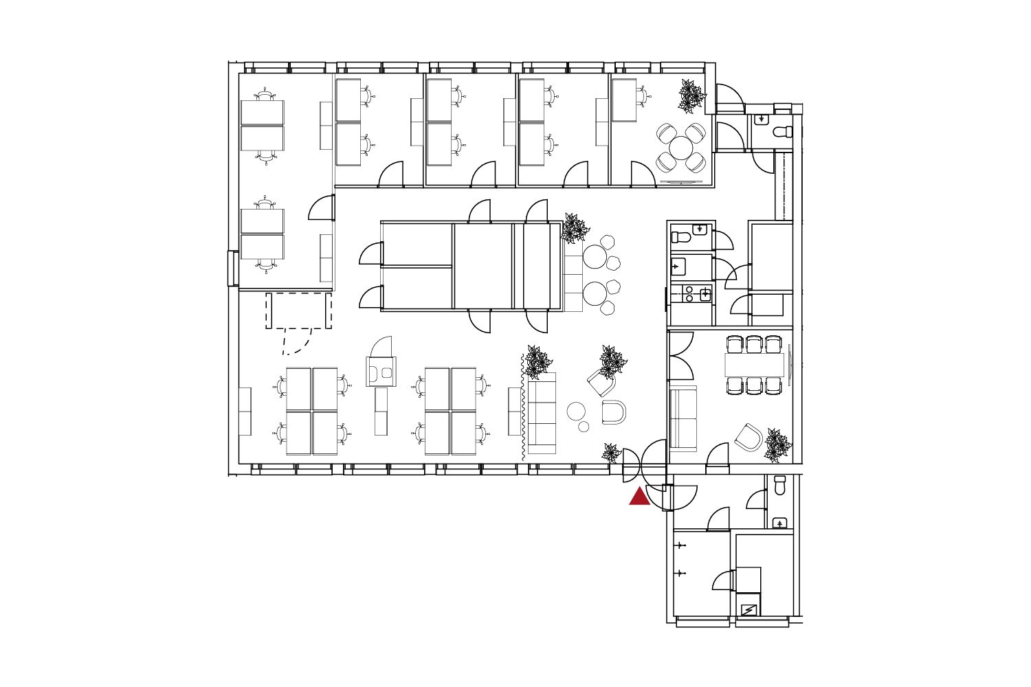
Ainutlaatuinen toimitila saunalla vuokrattavissa Technopolis Linnanmaan kampuksella. Tilassa löytyy erillisiä työ- ja neuvotteluhuoneita, avotilaa, keittiö, sosiaalitilat, saunatilat sekä wc:t. Ilmoitettu neliömäärä sisältää jyvityksen kiinteistön yhteisistä tiloista.
Linnanmaan kampus tarjoaa asiakkailleen kattavan valikoiman palveluita. Aulapalvelu sekä Compass Groupin ravintola Garden palvelevat kätevästi Teknologiantie 1:n kiinteistössä.
Kokousjärjestelyihin on tarjolla monipuolinen valikoima tiloja pienistä neuvotteluhuoneista suurempiin kokous- ja koulutustiloihin, jotka sopivat erinomaisesti erilaisiin tilaisuuksiin ja tapahtumiin.
Kiinteistön edustalla on hyvin pysäköintitilaa, ja Technopoliksen asiakkaiden vieraat voivat käyttää vieraspysäköintiä maksutta. Lähialueelta löytyy monipuolisesti palveluita, ja aivan naapurissa sijaitsevat muun muassa Oulun yliopisto, Linnanmaan Prisma sekä Technopoliksen kuntosalikumppani.
Lisätietoja numerosta 020 7290 710. Lisää kohteita osoitteessa www.premises.fi.
Kohteella ei lain edellyttämää energiatodistusta tai energialuokka ei tiedossa.Kerros: 1
CRE PREMISES
Puh. Näytä puhelinnumero 020 7290 710
Vantaankoskentie 14
01670 VANTAA
