Vuokrataan liiketilat - Pirkkala
Jasperintie 310 B, Vähä-Vaitti, 33960 Pirkkala #10856308
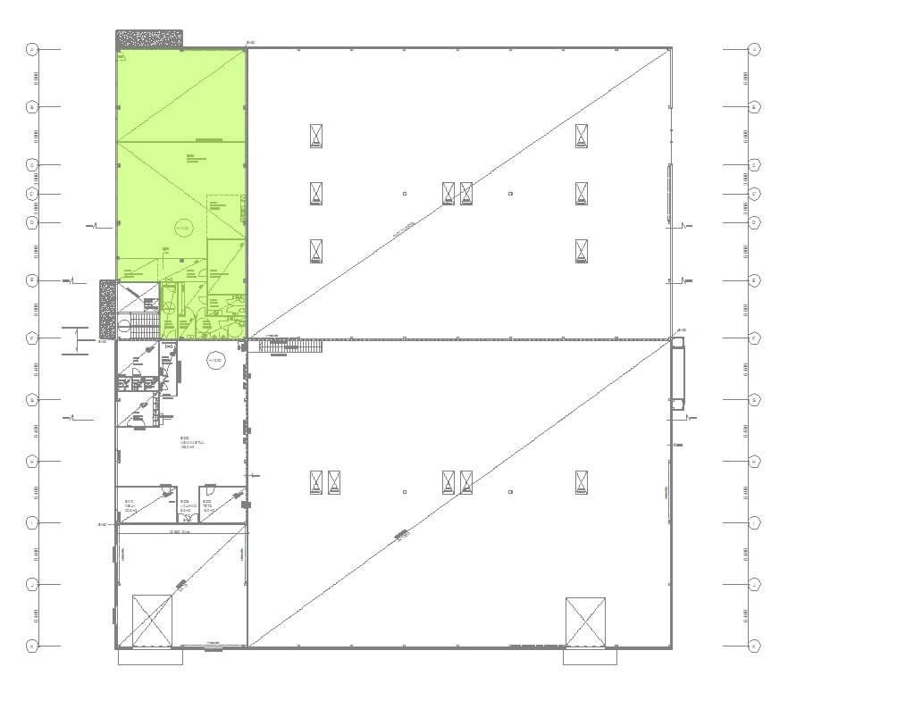
Vuokrattavana monikäyttöistä myymälätilaa, joka soveltuu myös varastointiin ja tuotantoon. Toimitilassa on kaksi nosto-ovea. Toimitila vapautuu syksyllä 2026.
Osoite
Jasperintie 310 B, 33960 Pirkkala
Tilatyyppi
Liiketilaa
2078 m2
Kiinteistö
Vuokrattava myymälä-, varasto- ja tuotantotila 2078 m², Jasperintie 310 B, Pirkkala
Vuokrattavana monikäyttöistä myymälätilaa, joka soveltuu myös varastointiin ja tuotantoon. Toimitila vapautuu syksyllä 2026.
Toimitilassa on kaksi nosto-ovea.
Kohteen sijainti on loistava ja monipuolinen lounasravintola sijaitsee viereisessä rakennuksessa.
Tutustu kaikkiin vapaisiin toimitiloihin: sagaxtilat.fi/toimitilat
Vuokrattavana monikäyttöistä myymälätilaa, joka soveltuu myös varastointiin ja tuotantoon. Toimitila vapautuu syksyllä 2026.
Toimitilassa on kaksi nosto-ovea.
Kohteen sijainti on loistava ja monipuolinen lounasravintola sijaitsee viereisessä rakennuksessa.
Tutustu kaikkiin vapaisiin toimitiloihin: sagaxtilat.fi/toimitilat
Vapautuu
Kysy
Rakennusvuosi
2014
Ota yhteyttä
Sagax Finland
Aleksanterinkatu
Näytä puhelinnumero
19 00100
HELSINKI
Näytä puhelinnumero
010 3200 320
Pyydä lisätietoa
