Vuokrataan varastotilat - Vantaa
Antaksentie 4, Veromies, 01510 Vantaa #10856305
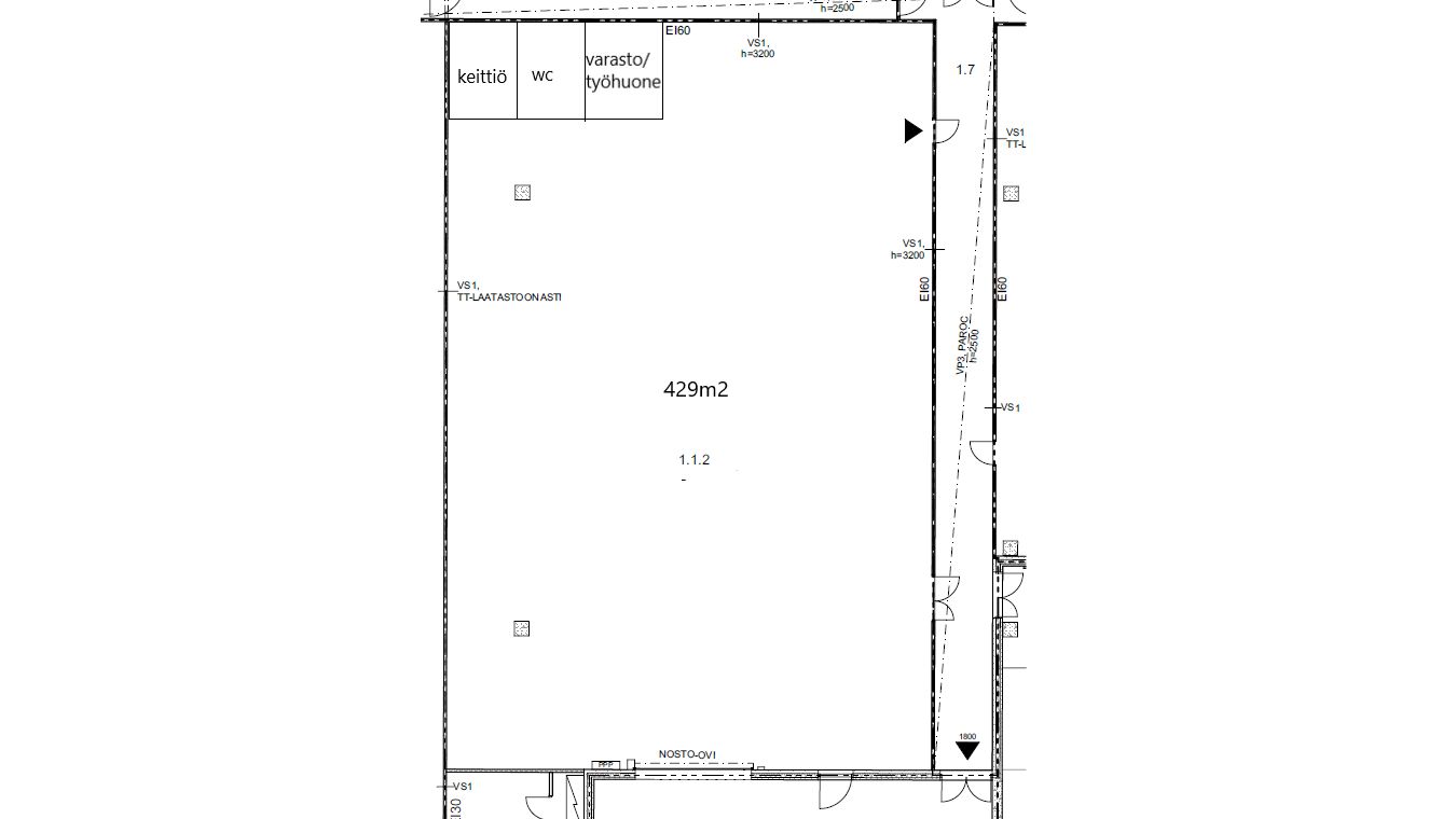
Vuokrataan katutason sisään ajettava 429m2 varastotila Vantaanportin Retail Parkista. Tilasta löytyy katettu lastaus maantason nosto-ovella, erillinen kulkuovi, toimisto, keittiö ja wc. Tarvittaessa toimiston seiniä voi purkkaa, liukuovi voi vaihtaa ikkunnalliseen oveen ja toimistoon voi tehdä ikkuna.
Kohteen pihalla on pysäköintipaikkoja.
Vantaanportti Retail Park on monipuolinen kauppapaikka, joka sijaitsee sujuvien kulkuyhteyksien päässä Vantaan Pakkalassa, Kehä 3:n varrella.
Välittömässä läheisyydessä ovat sekä Helsinki-Vantaan lentokenttä että mm. kauppakeskus Jumbo, joka tarjoaa mm. hotelli-, kylpylä- ja ravintolapalveluita. Jumbossa on myös keilahalli ja elokuvateatteri.
Ei sovellu autokorjaamoon.
Kysy lisää!
Katutasossa
Näkyvällä paikalla
Comreal Oy LKV
Salla Saraniemi
Näytä puhelinnumero
040 138 1081
Läkkisepänkuja 6, 00620 Helsinki
Comreal on valtakunnallinen, asiantunteva ja aktiivinen kiinteistöalan kumppani, joka palvelee sekä kiinteistönomistajia että toimitilojen käyttäjiä. Toimintamme ydin on yksinkertainen: tarjota erinomaista palvelua kaikille.
