Vuokrataan toimistotilat - Helsinki
Itämerenkatu 3, Ruoholahti, 00180 Helsinki #10856302
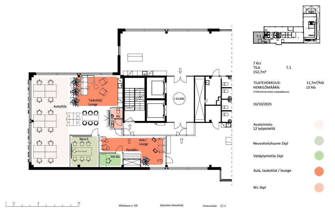
Vuokrataan muuttovalmis remontoitu toimistotila Ruoholahdesta. Avarassa ja valoisaa toimistossa on avotyöskentelytilaa, neuvotteluhuone, vetäytymistila, sekä viihtyisät keittiö- ja taukotilat.
Itämerenkatu 3 kiinteistöstä löytyy vuokralaiselle kattavat palvelut, kuten ravintolamaailma, vuokrattavat neuvottelutilat, aulapalvelu sekä kuntosali. Ruoholahteen on erinomaiset julkisen liikenteen yhteydet. Kiinteistöltä on metroasemalle matkaa 300m ja bussi- sekä raitiovaunupysäkit suoraan talon kohdalla. Autoilijoille vuokrattavissa pysäköintipaikkoja parkkihallista ja pyöräilijöille on pyöräparkki sekä suihku-, pukuhuone- ja saunatilat.
Lisätietoja soita 020 730 4530 tai info@repoint.fi. Palvelumme on tilanhakijalle ilmainen.
Hissi
Repoint Toimitilat Oy
Itälahdenkatu 22 B, 00210 Helsinki
Näytä puhelinnumero
020 730 4530
Lisätietoja soita Näytä puhelinnumero 020 730 4530 tai info@repoint.fi
https://repoint.fi/