Vuokrataan liiketilat - Helsinki
Kraputie 2, Östersundom, 00890 Helsinki #10856298
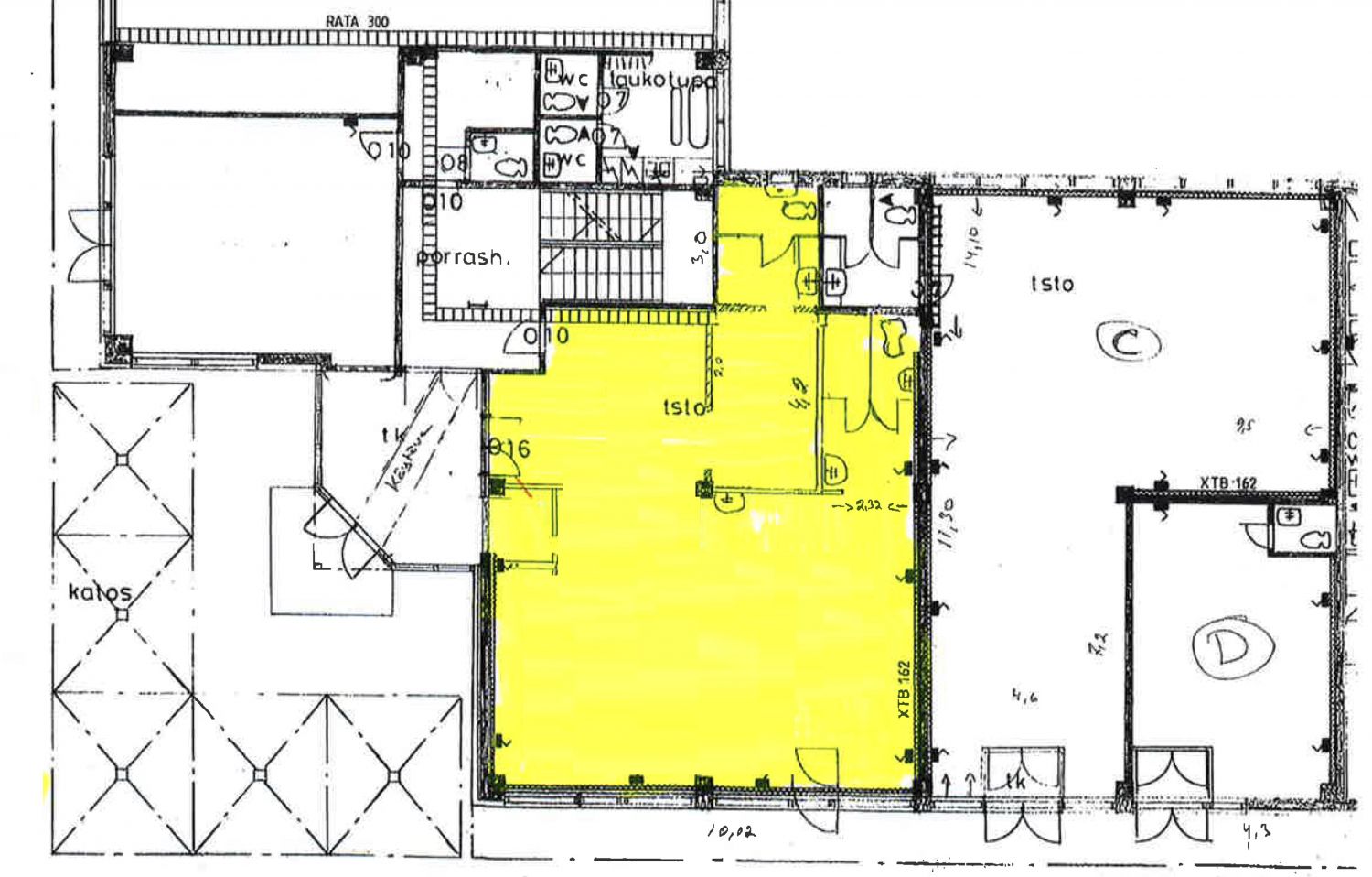
Katutason 120 m² liiketila loistopaikalla Östersundomissa Uuden Porvoontie varrella.
Osoite
Kraputie 2, 00890 Helsinki
Tilatyyppi
Liiketilaa
120 m2
Pohjapiirros
Vuokra
1320 € / kk + alv
Kiinteistö
Remontoitu katutason liiketila omalla sisäänkäynnillä Östersundomissa.
Vuokraan sisältyy lämmitys, vesi, sekä rappukäytävän ja eteisen siivous. Vuokralainen vastaa sähköstä (oma sähkömittari).
Vuokraan sisältyy lämmitys, vesi, sekä rappukäytävän ja eteisen siivous. Vuokralainen vastaa sähköstä (oma sähkömittari).
Vapautuu
Heti
Rakennusvuosi
1988
Saneerausvuosi
2023
Kerros
1
Energiatehokkuusluokka
Ei lain edellyttämää energiatodistusta
Katutasossa
Ota yhteyttä
ScanReal Oy LKV
Opus Business Park
Hitsaajankatu 24
00810 Helsinki
info@scanreal.fi
Puh:
Näytä puhelinnumero
020 730 8830
Sopivat toimitilat yhdellä otolla!
Kartoitamme toimitilatarpeesi ja etsimme yrityksellesi parhaiten sopivat vapaat toimitilat. Koska vuokranantajat maksavat palvelumme, on tämä yrityksellesi veloituksetonta.
OTA YHTEYTTÄ - SOVI NÄYTTÖ!
Kaikki kohteemme eivät ole netissä, kerro tilatarpeesi niin kartoitamme vaihtoehdot.
Palvelumme on tilanhakijalle ilmainen
Pyydä lisätietoa
