Vuokrataan toimistotilat - Helsinki
Vääksy 2, Vääksyntie 2, Vallila, 00150 Helsinki #10856277
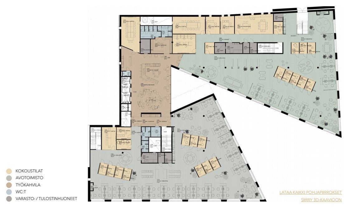
Tyylikästä toimistotilaa OP-finanssi korttelissa Vallilassa. Pääkonttoritason kiinteistö, joka tarjoaa edustavia, muuntojoustavia toimitiloja sekä poikkeuksellisen hyvät oheispalvelut. Tämä yht. 2.030m2 toimistotila sijaitsee 4krs:ssa ja on jaettavissa tarvittaessa kahdelle käyttäjälle 930m2/1.100m2 osissa. HUOM! - kaikki esitteen kuvat eivät ehkä ole juuri tästä tilasta. Soita ja sovi esittely, palvelumme on tilanhakijalle maksutonta, puh. 09 7745 100.
Osoite
Vääksyntie 2, 00150 Helsinki
Tilatyyppi
Toimistotilaa
930 - 2030 m2
Tilajako
Jaettavissa
930m2/1100m2
Pohjapiirros
Kiinteistö
Arkkitehtonisesti korkeatasoinen, palkittu toimistotalo.
Kiinteistöllä on LEED Gold tason ympäristösertifikaatti.
Toimistokorttelin katolla on suuri aurinkovoimala.
Kiinteistöllä on LEED Gold tason ympäristösertifikaatti.
Toimistokorttelin katolla on suuri aurinkovoimala.
Sijainti
Vallila
Ympäristö
Kehittyvä Vallilan yritysalue.
Pysäköinti
Kiinteistöllä on 800 auton parkkihalli, jossa myös sähkölatauspaikkoja.
Vieraspysäköintipaikat sijaitsevat talon edessä. Myös työmatkapyöräilijöille on asianmukaiset parkkitilat valmiina.
Vieraspysäköintipaikat sijaitsevat talon edessä. Myös työmatkapyöräilijöille on asianmukaiset parkkitilat valmiina.
Palvelut
- aulavastaanotto
- ravintolamaailma
- kahvioita
- auditoriot 3kpl
- neuvottelumaailma
- koulutustiloja
- edustustiloja
- tapahtumatiloja
- kohtaamistiloja
- vetäytymistiloja
- kuntosali
- parturi/kampaamo
- sosiaalitilat
- autohalli
- pyöräparkki
- ravintolamaailma
- kahvioita
- auditoriot 3kpl
- neuvottelumaailma
- koulutustiloja
- edustustiloja
- tapahtumatiloja
- kohtaamistiloja
- vetäytymistiloja
- kuntosali
- parturi/kampaamo
- sosiaalitilat
- autohalli
- pyöräparkki
Kulkuyhteydet
HSL, metrolle 400m
Vuokralaisia
Kiinteistön pääkäyttäjä on OP-finanssitalo
Vapautuu
Heti
Rakennusvuosi
2018
Kerros
4 / 5
Energiatehokkuusluokka
B2018
Ympäristöluokitus
Leed-Gold
Näkyvällä paikalla
Jaettavissa
Hissi
Ota yhteyttä
Senaatin Notariaatti Oy LKV
Lämmittäjänkatu 4 A
FIN-00880 Helsinki
Tel:
Näytä puhelinnumero
+358 9 7745 100
Pyydä lisätietoa
