Vuokrataan toimistotilat - Helsinki
Hankasuontie 9, Konala, 00390 Helsinki #10856273
Rouhea 275 m² toisen kerroksen toimisto-/tuotanto-/varastotila Konalasta teollisuuskiinteistöstä.
Osoite
Hankasuontie 9, 00390 Helsinki
Tilatyyppi
Toimistotilaa
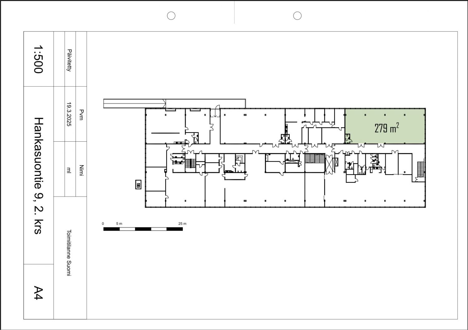
279 m2
Pohjapiirros
Kiinteistö
Rouhea toisen kerroksen tuotanto-/varastotila/toimisto on mahdollisuuksia täynnä. Tilan korkeus on noin 3 m ja kattoikkunat tuovat lisää valoa. Oma wc käytössä. Toiseen kerrokseen johtaa ajoramppi, lisäksi käytettävissä on kiinteistön tavarahissi.
Kiinteistö sijaitsee Vihdintien tuntumassa vilkkaalla Hankasuontien teollisuus- ja yritysalueella. Rakennuksessa toimii tällä hetkellä yrityksiä mm. maahantuonnin, tukkukaupan, kokoonpanon ja B2B-toiminnan parista.
Kiinteistö sijaitsee Vihdintien tuntumassa vilkkaalla Hankasuontien teollisuus- ja yritysalueella. Rakennuksessa toimii tällä hetkellä yrityksiä mm. maahantuonnin, tukkukaupan, kokoonpanon ja B2B-toiminnan parista.
Vapautuu
Heti
Kerros
2
Energiatehokkuusluokka
Ei lain edellyttämää energiatodistusta
Katutasossa
Näkyvällä paikalla
Hissi
Ota yhteyttä
ScanReal Oy LKV
Opus Business Park
Hitsaajankatu 24
00810 Helsinki
info@scanreal.fi
Puh:
Näytä puhelinnumero
020 730 8830
Sopivat toimitilat yhdellä otolla!
Kartoitamme toimitilatarpeesi ja etsimme yrityksellesi parhaiten sopivat vapaat toimitilat. Koska vuokranantajat maksavat palvelumme, on tämä yrityksellesi veloituksetonta.
OTA YHTEYTTÄ - SOVI NÄYTTÖ!
Kaikki kohteemme eivät ole netissä, kerro tilatarpeesi niin kartoitamme vaihtoehdot.
Palvelumme on tilanhakijalle ilmainen
Pyydä lisätietoa
