Vuokrataan toimistotilat - Kempele
Vihikari 10, 90440 Kempele #10856257
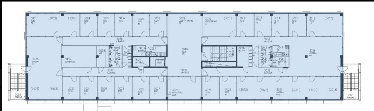
Vuokrataan erinomaista toimistoa kohteen 2. kerroksesta. Toimitilat ovat jaettavissa käyttäjän tarpeiden mukaan. Kohteen sijainti on loistava lentokentän ja kattavien palveluiden läheisyydessä. Kiinteistöltä löytyy myös hyvät pysäköintimahdollisuudet. Kiinteistössä aulapalvelu, lounasravintola ja neuvottelutilat saunaosastoineen.
Lisätietoja 020 7290 710 ja lisää kohteita premises.fi
Kohteella ei lain edellyttämää energiatodistusta tai energialuokka ei tiedossa.Kerros: 2
Osoite
Vihikari 10, 90440 Kempele
Tilatyyppi
Toimistotilaa
433 m2
Ota yhteyttä
CRE PREMISES
Puh. Näytä puhelinnumero 020 7290 710
Vantaankoskentie 14
01670 VANTAA
Pyydä lisätietoa
