Vuokrataan toimistotilat - Helsinki
Konalantie 47, Konala, 00390 Helsinki #10856250
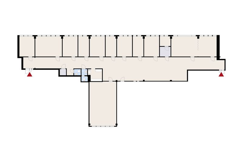
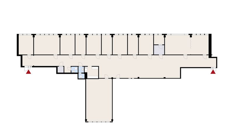
Vuokrataan toisen kerroksen toimistotila Konalaterrasta, Helsingin Konalasta. Tila koostuu useista eri kokoisista huoneista sekä omasta keittiöstä ja wc-tiloista. Kohteessa lastauslaituri ja tavarahissiyhteys kerrokseen. Kiinteistöä kehitetään palveluliiketoiminta- ja toimistokäyttöä varten. Kiinteistössä toimii jo R-kioski, urheiluhierontakeskus, lounasravintola sekä Puuilo.
Konalantie 47 on vuonna 1990 rakennettu toimisto- ja varastorakennus. Kellarissa on 212 lämmintä autopaikkaa ja sosiaalitiloja. Lisäksi kiinteistön pihalla on autopaikkoja.
Lastauslaituri ja tavarahissit kerroksiin. Toimistotiloissa jäähdytys. Alueelle rakennetaan sekä uusia asuntoja että useampia kaupan kohteita.
Lisätietoja numerosta 020 7290 710. Lisää kohteita osoitteessa www.premises.fi.
Kohteella ei ole lain edellyttämää energiatodistusta tai energialuokka ei tiedossa.Kerros: 2
CRE PREMISES
Puh. Näytä puhelinnumero 020 7290 710
Vantaankoskentie 14
01670 VANTAA
