Vuokrataan toimistotilat - Helsinki
Mikonkatu 13, 00100 Helsinki #10856193
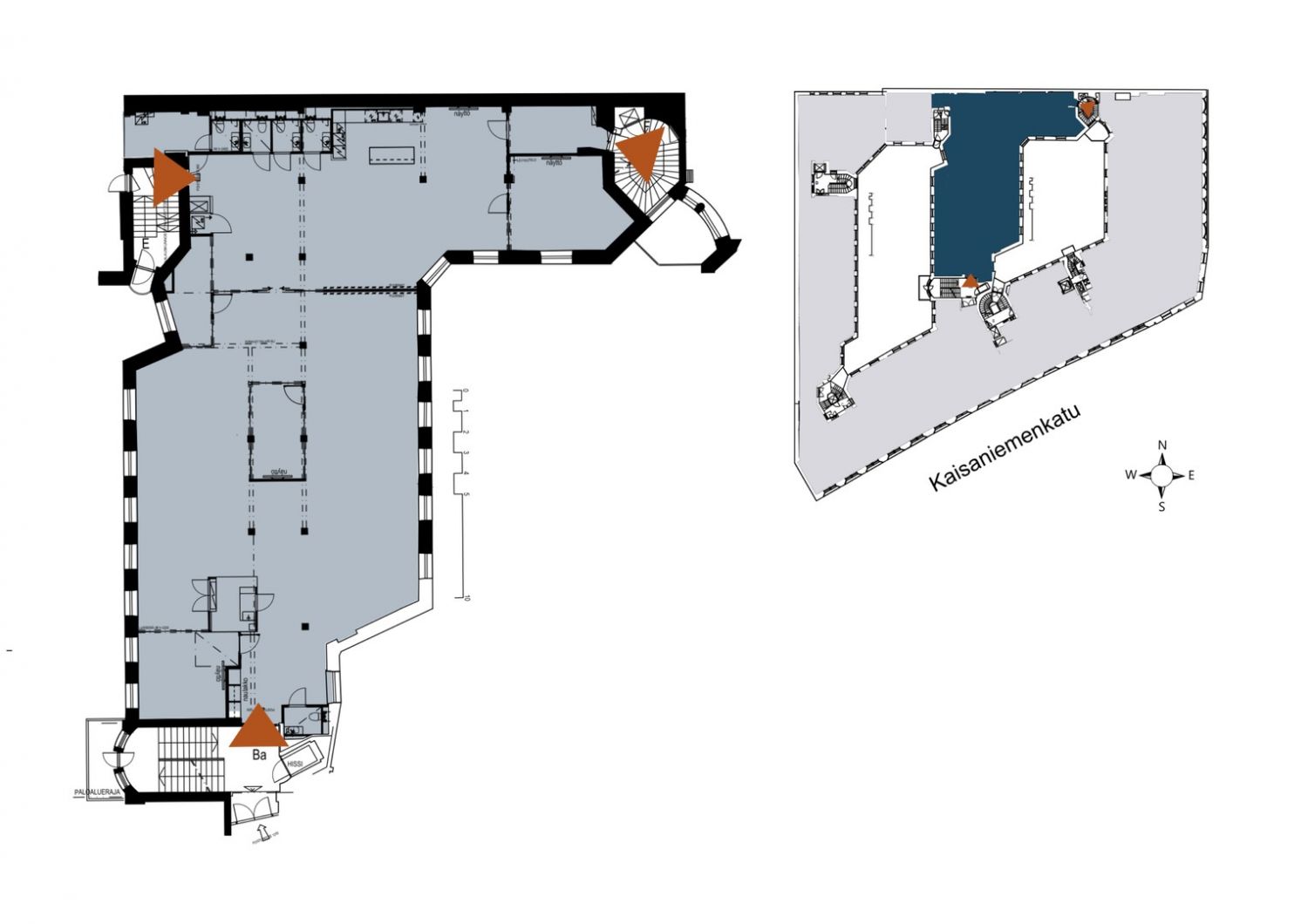
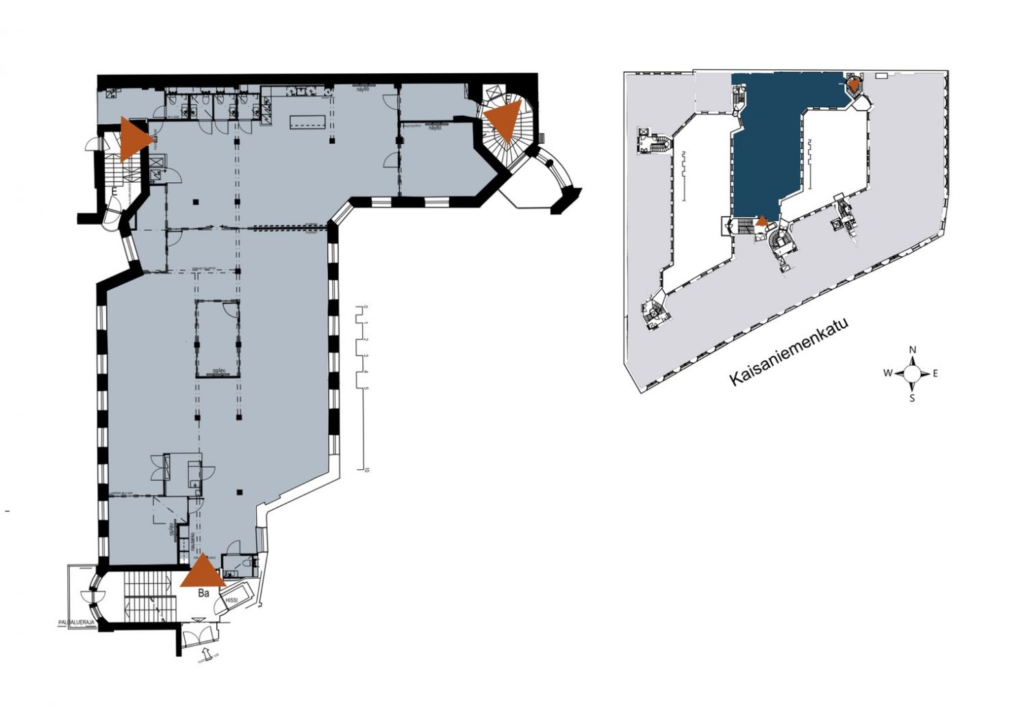
Vuokrattavana 408 m² toimistotila Helsingin keskustasta, historiallisessa lähes 100 vuotta vanhassa kiinteistössä. Erinomainen sijainti tarjoaa loistavat palvelut ja hyvät julkisen liikenteen yhteydet. Kiinteistön kellaritiloihin on hiljattain uusittu modernit suihku- ja pukuhuonetilat sekä turvalliset ja tilavat pyörien säilytys- ja latausmahdollisuudet.
Ota yhteyttä ja kysy lisää!
www.blanctoimitilat.fi
Harri Laisto, LKV, Kaupanvahvistaja
harri.laisto@blanckiinteisto.com
040 536 5590
Tiesitkö, että tilan hakijalle palvelumme on maksuton!

Blanc Toimitilat
Harri Laisto
Toimitila-asiantuntija, CEO, Kaupanvahvistaja, LKV
Näytä puhelinnumero
+358405365590