Vuokrataan toimistotilat, tuotantotilat, varastotilat - Helsinki
Ruosilantie 14, Konala, 00390 Helsinki #10856179
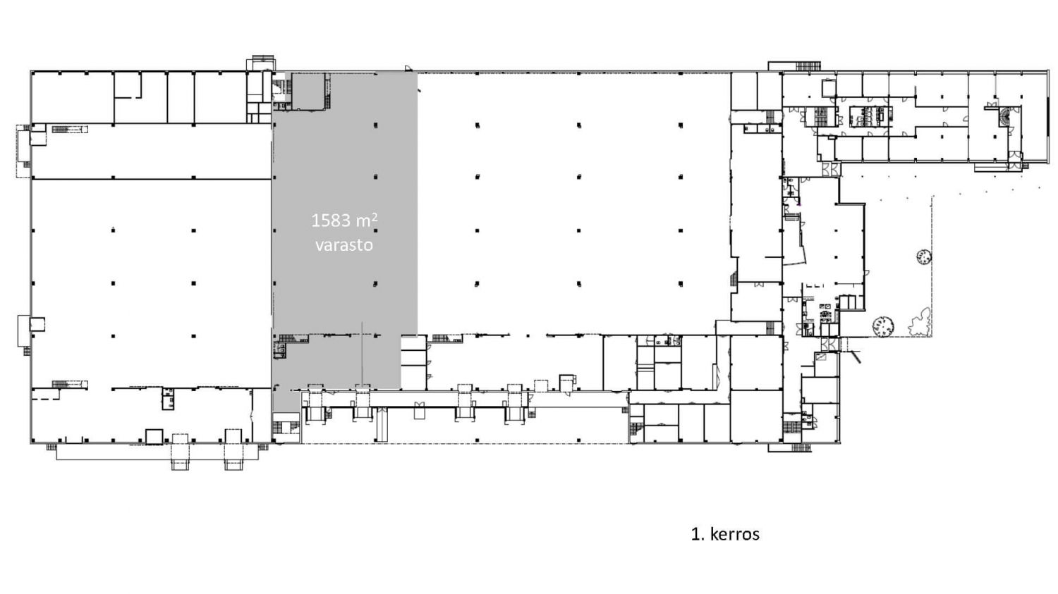
Heti vapaa, kätevä 2223 m² kokonaisuus sisältäen korkeaa varastoa 1583 m², toimiston 218 m² sekä siistin ja kompaktin parvivaraston 422 m²
Osoite
Ruosilantie 14, 00390 Helsinki
Tilatyyppi
Toimistotilaa
2220 m2
Tuotantotilaa
2220 m2
Varastotilaa
2220 m2
Yhteensä
2220 m2
Kiinteistö
Heti vapaa, yhteensä 2 223 m² toimiva kokonaisuus. Tila koostuu 1 583 m² korkeasta varastosta, 218 m² toimistosta sekä 422 m² parvivarastosta. Varastossa on lastauslaituri ja nosto-ovi. Tila on aiemmin ollut tapahtuma-alan toimijan käytössä. Sijainti on erittäin hyvä, Kehä I:n liittymä sijaitsee välittömässä läheisyydessä. Kiinteistössä on lounasravintola ja hyvät pysäköintimahdollisuudet. Varasto vuokrataan yhdessä toimiston ja parvivaraston kanssa. Toimistossa on keittiö sekä wc- ja sosiaalitilat.
Toimitilan keskeiset tiedot:
- Varastotila 1583 m²
- Toimistotila 218 m²
- Parvivarasto 422 m²
Kiinnostuitko? Ota yhteyttä ja kysy lisää!
Toimitilan keskeiset tiedot:
- Varastotila 1583 m²
- Toimistotila 218 m²
- Parvivarasto 422 m²
Kiinnostuitko? Ota yhteyttä ja kysy lisää!
Sijainti
Alue tarjoaa monipuolisia palveluja ja on helposti saavutettavissa niin julkisella liikenteellä kuin omalla autollakin.
Vihdintie ja Kehä I välittömässä läheisyydessä.
Kauppakeskus Ristikko lyhyen etäisyyden päässä.
Vihdintie ja Kehä I välittömässä läheisyydessä.
Kauppakeskus Ristikko lyhyen etäisyyden päässä.
Vapautuu
Kysy
Rakennusvuosi
1971
Kerros
1. / 3
Energiatehokkuusluokka
Ei lain edellyttämää energiatodistusta
Näkyvällä paikalla
Ota yhteyttä
Arvo Premises Oy
Joni Männikkö
Osakas, Kiinteistönvälittäjä
Näytä puhelinnumero
044 563 6441
Joakim Kukkonen
Osakas, Toimitilavälittäjä
Näytä puhelinnumero
040 555 8106
Seppo Pakarinen
Osakas, Kiinteistönvälittäjä. LKV, YKV, AKA
Näytä puhelinnumero
040-703 8000
Pyydä lisätietoa
