Vuokrataan toimistotilat - Tampere
Eteläpuisto 2c, 33200 Tampere #10856148
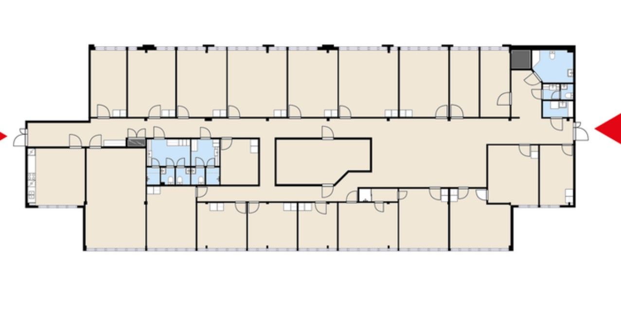
Tämä ainutlaatuinen toimistokokonaisuus sijaitsee Klingendahlin historiallisen rakennuksen 5. kerroksessa ja tarjoaa 591 m² tilaa, joka on valmiina tukemaan yrityksesi kasvua. Rakennuksen kauniisti entisöity arkkitehtuuri tuo ainutlaatuista tunnelmaa työympäristöön.
Avarat huoneet ja korkeat ikkunat luonnonvalo tulvii sisään, luoden miellyttävän ja inspiroivan työympäristön.
Entisöity rakennus yhdistää perinteisen arkkitehtuurin ja modernit mukavuudet.
Tilat ovat siistissä kunnossa ja heti vuokrattavissa.
Lounaspaikkoja löytyy runsaasti aivan lähistöltä, mikä tekee arjesta sujuvampaa.
Rautatieasemalle on matkaa vain noin 1,5 km, joten työmatkaliikenne on vaivatonta.
Tartu tilaisuuteen ja tuo yrityksesi työskentelemään ainutlaatuiseen ympäristöön!
Ota yhteyttä ja sovi esittely – tule tutustumaan tähän upeaan toimistotilaan Klingendahlissa.
Vuokraan lisätään alv + kulut.
Ota yhteyttä ja kysy lisää!
www.blanctoimitilat.fi
Masa Hakala
masa.hakala@blanckiinteisto.com
+358 40 964 2482
