Vuokrataan toimistotilat - Espoo
Sinikalliontie 12, Mankkaa, 02630 Espoo #10856099
Pientoimistotilaa Mankkaalla, Espoossa.
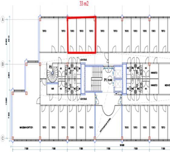
Kiinteistön 2. kerroksessa on pientoimistotiloja väliltä 11 m² - 33 m². Sosiaalitilat ovat yhteiskäyttöiset.
Sinikalliontie 12 sijaitsee Espoon Mankkaalla, Sinikallion yritysalueella. Kiinteistöllä on hyvä sijainti lähellä Turunväylää, Kehä II:sta ja Kehä III:sta. Toimistotalossa on mm. aulavastaanotto, edustus- ja saunatilat sekä business center palveluja. Kiinteistön pihalla on runsaasti pysäköintitilaa.
Kysy lisää numerosta 044 723 4700 tai info@bref.fi. Palvelumme on tilanhakijoille ilmainen.
Hissi
Bureau Real Estate Finland Oy
Lars Sonckin kaari 16, 02600 Espoo
Näytä puhelinnumero
0447234700
Bureau Real Estate Finland Oy
https://www.bref.fi