Vuokrataan toimistotilat - Helsinki
Sörnäistenkatu 2, Sörnäinen, 00580 Helsinki #10856091
Valoisaa ja avaraa toimistotilaa keskeisellä paikalla. Tila on pääosin avotoimistoa, jonka mukavuutta lisää huoneilmanjäähdytys.
Osoite
Sörnäistenkatu 2, 00580 Helsinki
Tilatyyppi
Toimistotilaa
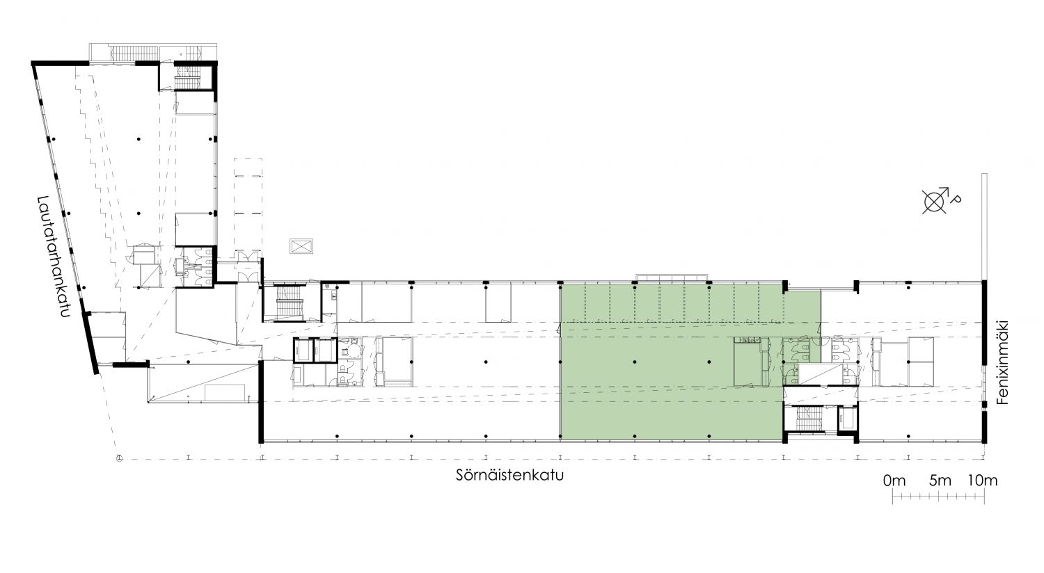
455 m2
Pohjapiirros
Kiinteistö
Täyden palvelun toimitilaa Sörnäisten ytimessä.
Monipuolinen ja ympäristöystävällinen toimitalo Sörnäisten ytimessä tarjoaa viihtyisän työympäristön, jossa palvelut tukevat arjen sujuvuutta. Talosta löytyy aulapalvelu, kuntosali sekä juuri uudistetut neuvottelutilat. Lisäksi kiinteistössä toimii oma leipomo-lounaskahvila. Ylimmässä kerroksessa sijaitsevat saunatilat ja kattoterassi, jotka tuovat lisämukavuutta työpäiviin. Kiinteistön omasta parkkihallista pääsee suoraan toimistokerroksiin, mikä helpottaa liikkumista.
Toimitilavaihtoehtoja on tarjolla pienistä 41 m² toimistohuoneista aina 1800 m² yhden kerroksen kokonaisuuksiin. Isompia toimistokokonaisuuksia on mahdollista jakaa myös noin 270–570 m² palasiin. Toisen kerroksen yhteyteen on mahdollista rakentaa myös kevyttä tuotantotilaa lastauslaiturilla.
Kiinteistö sijaitsee erinomaisten kulkuyhteyksien varrella, lähellä Sörnäisten ja Kalasataman metroasemia. Hämeentieltä kulkee busseja ja raitiovaunuja eri puolille pääkaupunkiseutua. Läheltä löytyvät myös Teurastamon ja Suvilahden tapahtuma-alueet sekä kauppakeskus REDI.
Kiinteistöllä on BREEAM In-Use Excellent -tason ympäristösertifikaatti, ja se toimii 100 % päästöttömällä energialla, kuten tuulisähköllä ja uusiutuvalla kaukolämmöllä.
Monipuolinen ja ympäristöystävällinen toimitalo Sörnäisten ytimessä tarjoaa viihtyisän työympäristön, jossa palvelut tukevat arjen sujuvuutta. Talosta löytyy aulapalvelu, kuntosali sekä juuri uudistetut neuvottelutilat. Lisäksi kiinteistössä toimii oma leipomo-lounaskahvila. Ylimmässä kerroksessa sijaitsevat saunatilat ja kattoterassi, jotka tuovat lisämukavuutta työpäiviin. Kiinteistön omasta parkkihallista pääsee suoraan toimistokerroksiin, mikä helpottaa liikkumista.
Toimitilavaihtoehtoja on tarjolla pienistä 41 m² toimistohuoneista aina 1800 m² yhden kerroksen kokonaisuuksiin. Isompia toimistokokonaisuuksia on mahdollista jakaa myös noin 270–570 m² palasiin. Toisen kerroksen yhteyteen on mahdollista rakentaa myös kevyttä tuotantotilaa lastauslaiturilla.
Kiinteistö sijaitsee erinomaisten kulkuyhteyksien varrella, lähellä Sörnäisten ja Kalasataman metroasemia. Hämeentieltä kulkee busseja ja raitiovaunuja eri puolille pääkaupunkiseutua. Läheltä löytyvät myös Teurastamon ja Suvilahden tapahtuma-alueet sekä kauppakeskus REDI.
Kiinteistöllä on BREEAM In-Use Excellent -tason ympäristösertifikaatti, ja se toimii 100 % päästöttömällä energialla, kuten tuulisähköllä ja uusiutuvalla kaukolämmöllä.
Sijainti
Kohteeseen on helppo saapua julkisin kulkuyhteyksin. Sörnäisten ja Kalasataman metroasemat sijaitsevat lähietäisyydellä. Myös alueen muut joukkoliikenneyhteydet ovat erinomaiset: Hämeentieltä pääsee busseilla ja raitiovaunuilla helposti eri puolille pääkaupunkiseutua.
Pysäköinti
Autopaikkoja omassa parkkihallissa
Palvelut
Kiinteistöstä löytyy lounasravintola, aulapalvelu, neuvottelutiloja, kuntosali, kattoterassi ja saunatilat. Sörnäisten alueen peruspalvelut ovat kattavat ja lyhyellä kävelyetäisyydellä kohteesta.
Kulkuyhteydet
Lähimmälle bussipysäkille 200 m
Lähimmälle metroasemalle 550 m
Lähimmälle raitiovaunupysäkille 300 m
Lentokentälle 20 min
Lähimmälle metroasemalle 550 m
Lähimmälle raitiovaunupysäkille 300 m
Lentokentälle 20 min
Vapautuu
Kysy
Rakennusvuosi
2008
Kerros
2
Energiatehokkuusluokka
B2018
Ympäristöluokitus
BREEAM In-Use Excellent,GRESB Global Sector Leader 2025
Ota yhteyttä
Sponda Oy
Yrjönkatu 29C, 00100 Helsinki
Näytä puhelinnumero
020 43131
Joni Rajaniemi
Senior Leasing Manager
Näytä puhelinnumero
+358 50 505 7504
Sponda Oy
https://www.sponda.fiPyydä lisätietoa
