Vuokrataan toimistotilat - Helsinki
Lönnrotinkatu 11, 00120 Helsinki #10856080
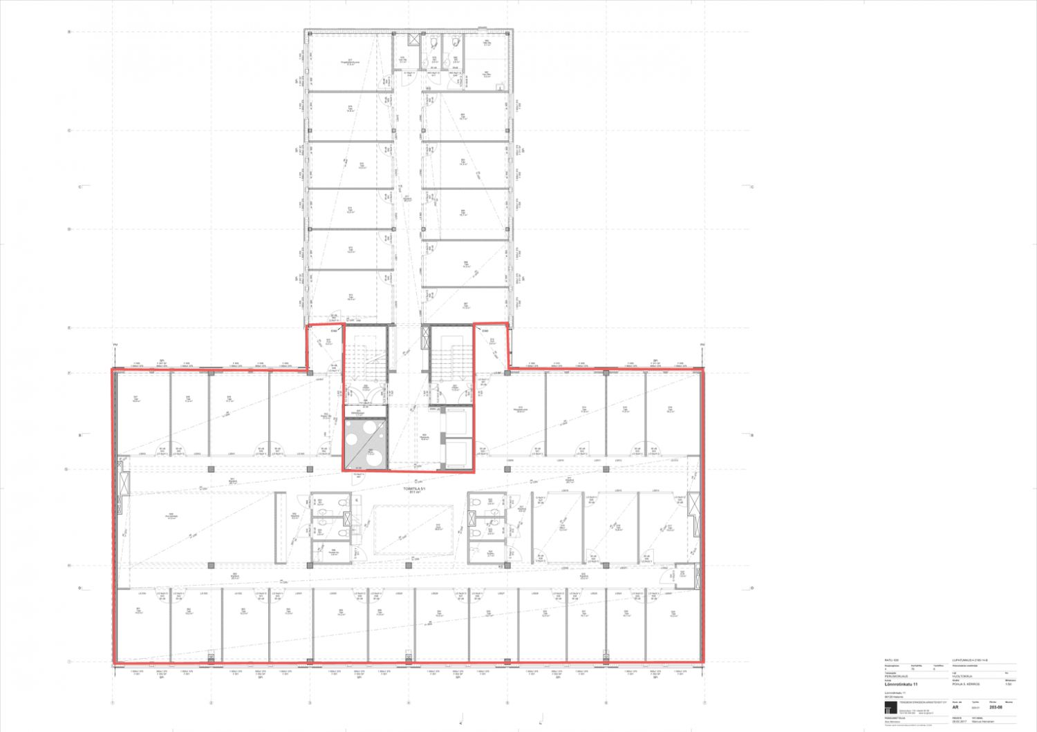
Vuokrattavana 5. kerroksen 587 m² toimistotila täysin uudistetussa kiinteistössä osoitteessa Lönnrotinkatu 11. Tämä valoisa ja moderni tila tarjoaa erinomaiset puitteet erilaisille yrityksille. Ilmoitettu neliömäärä sisältää jyvityksen sosiaalitiloista.
Lönnrotinkatu 11 sijaitsee erinomaisella paikalla Helsingin keskustan tuntumassa, lähellä palveluita ja liikenneyhteyksiä. Tämä tila sopii monenlaisille yrityksille, jotka arvostavat modernia työympäristöä ja keskeistä sijaintia
Lönnrotinkatu 11 (Lönkka 11) on vuonna 1972 valmistunut toimistorakennus, joka sijaitsee Helsingin ydinkeskustassa, erinomaisten liikenneyhteyksien äärellä. Kiinteistön kaikki sisätilat ja talotekniikka on uudistettu vastaamaan nykypäivän toimitilavaatimuksia ja rakennuksen julkisivu on saanut uuden ilmeen. Kiinteistöllä on LEED Platinum maininta. Talon katutasossa palvelevat ravintola ja kahvila. Kiinteistössä on vuokrattavia autopaikkoja sekä latauspaikkoja sähköautoille.
Kohde sijaitsee erittäin keskeisellä paikalla Helsingin keskustassa Kampissa, muutaman korttelin päässä Mannerheimintiestä. Puolen kilometrin säteellä sijaitsevat mm. Kampin kauppakeskus, Stockmannin tavaratalo ja Forumin kauppakeskus.
Ensimmäiseen kerrokseen sijoittuu liiketiloja ja palveluita. Toimistokerrokset sijoittuvat kerroksiin 2.-6. Näiden suunnittelussa huomioidaan erityisesti tilojen muuntojoustavuus. Pysäköintimahdollisuudet ovat poikkeuksellisen hyvät; kellarikerroksessa on 18 autopaikkaa ja piha-alueella 22 autopaikkaa. Kohteen lähellä on myös runsaasti pysäköintilaitoksia.
