Vuokrataan toimistotilat - Orivesi
Koulutie 5, Keskusta, 35300 Orivesi #10855985
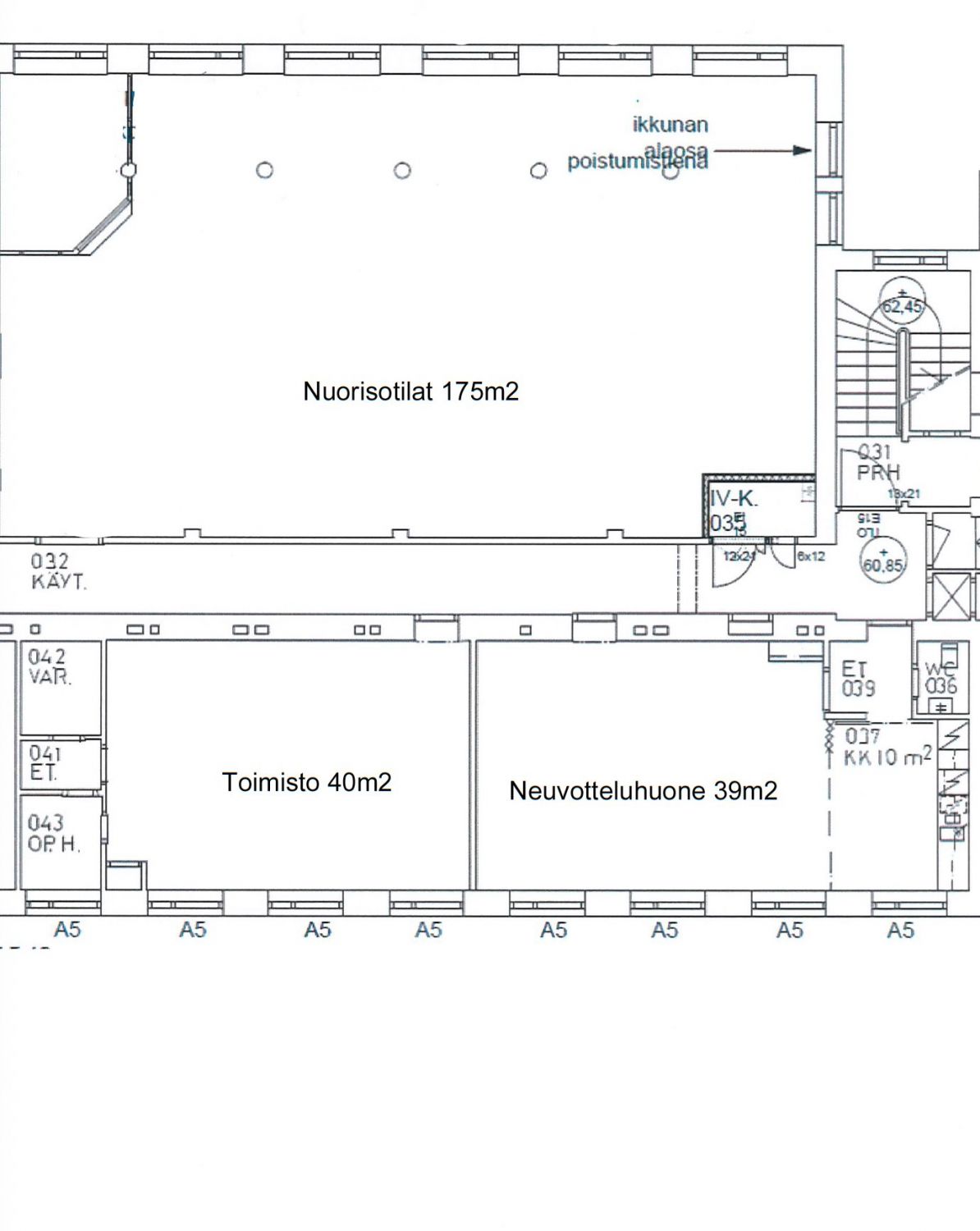
Tarjolla monien mahdollisuuksien toimitila Oriveden Kampuksella! Iso yhtenäinen tila 175m2, jossa on avokeittiö.
Tilassa on ilmastointi ja valokuitu.
Tila on esteetön sisältäen esteettömät WC-tilat. Tilat on remontoitu vuonna 2025.
Kampuksella toimii myös majoitus- ja ravintolapalvelut.
Orivesi on vireä noin 9000 asukkaan kaupunki vain reilun 40 km päässä Tampereelta koilliseen.
Orivedelle on erinomaiset juna- ja linja-autoyhteydet sekä autoileville on Kampuksella hyvin pysäköintitilaa.
Kampus sijaitsee aivan keskustan tuntumassa, mutta omassa rauhassaan viihtyisän vehreän puiston ääressä.
Vuokraan lisätään alv + kulut.
Ota yhteyttä ja kysy lisää!
Masa Hakala
masa.hakala@blanckiinteisto.com
+358 40 964 2482
www.blanctoimitilat.fi
