Vuokrataan tuotantotilat - Espoo
Koskelonkuja 1, Koskelo, 02920 Espoo #10855915
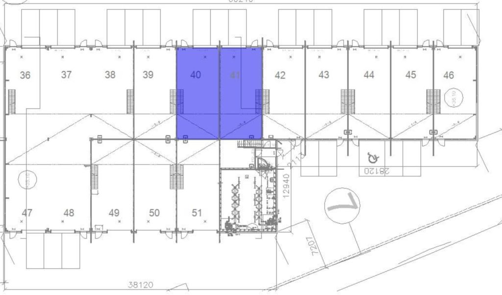
Sisäänajettavaa tuotanto-/ varastotilaa Koskelossa, Espoossa.
Tämä 195 m² kahden yksikön tilakokonaisuus jakautuu kiinteistön 1.-2. kerroksiin. Sisäänajettava tila joka soveltuu hyvin varastointiin ja tuotantoon. Tilan yhteydessä on kätevä toisen kerroksen toimistoparvi, jossa sijaitsevat myös oma keittiö sekä suihku- ja wc-tila. Tilassa on oma nosto-ovi, öljynerotuskaivo, voimavirtapiste sekä vesipiste. Yksiköt voidaan vuokrata myös erikseen. Vapautuminen 1.5.2026. Kuvat ovat yleiskuvia kiinteistön tiloista.
Koskelonkuja 1 A ja B ovat pienteollisuuskiinteistöjä, jotka ovat valmistuneet vuonna 2017 ja sen tilat on rakennettu joustaviksi niin, että yksiköitä on helppo muunnella, jakaa ja yhdistellä. Tilat mukautuvat helposti käyttäjän eri tarpeisiin, esimerkiksi tilat voivat toimia tuotanto-, varasto-, näyttely- tai myymälätiloina. Kiinteistössä lämmitysmuotona on maalämpö ja tietoliikenneyhteytenä valokuitu.
Kysy lisää numerosta 044 723 4700 tai info@bref.fi. Palvelumme on tilanhakijoille ilmainen.
Bureau Real Estate Finland Oy
Lars Sonckin kaari 16, 02600 Espoo
Näytä puhelinnumero
0447234700
Bureau Real Estate Finland Oy
https://www.bref.fi