Myydään toimistotilat - Tampere
Kansikatu 1, 33100 Tampere #10855899
Osoite
Kansikatu 1, 33100 Tampere
Tilatyyppi
Toimistotilaa
158,5 m2
Muuta
Myydään toimistohuoneisto Tampereen Kannen Opaali -nimisestä yhtiöstä.
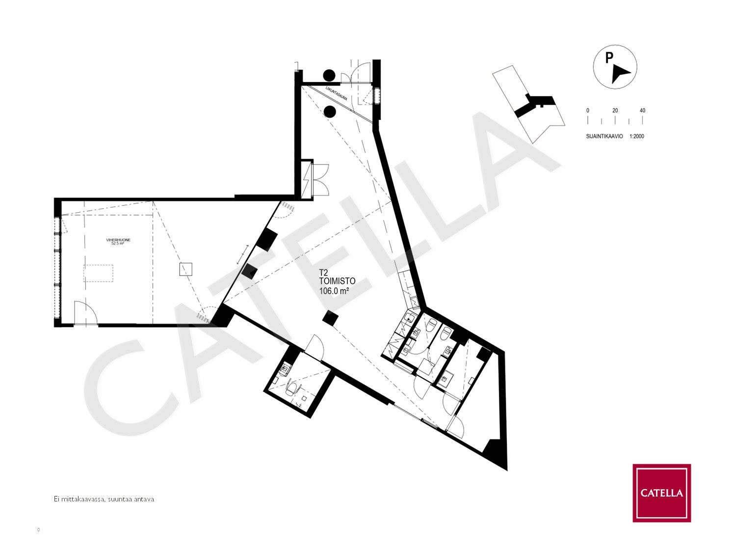
Tilat ovat nykyaikaiset ja avarat. Tilakokonaisuudessa avotilaa, keittiöseinä, varasto ja kolme wc-tilaa. Yhdessä wc-tilassa on inva-wc ja suihku.
Lattiassa on tekstiilimatto ja seinät on maalattu.
Viherhuoneen ikkunat ovat länteen ja huone on rajattavissa muusta tilasta siirrettävilä lasiseinillä.
Tampereen Kannen Opaali on valmistunut vuonna 2022. Yhtiöllä on oma 378 m2 tontti. Rakennuksessa on sekä liike- että asuinhuoneistoja. Yhtiössä on kaukolämpö ja kaukojäähdytysjärjestelmä, koneellinen tulo/poistoilmanvaihto sekä Taloyhtiönetti 50 M.
Keskeinen sijainti Tampereen keskustassa Nokia Arenan vieressä. Etäisyys rautatieasemalle on noin 400 m, Tampereen Yliopiston päärakennukselle, kauppakeskus Ratinaan ja Koskikeskukseen noin 300 m.
Hyvä saavutettavuus erityisesti julkisella liikenteellä. Useiden bussilinjojen ja Tampereen alueen raitiotien pysäkit vain 300 m päässä.
Lähietäisyydellä on myös useita pysäköintilaitoksia, joissa mahdollisuus lyhytaikaiseen tai kuukausipysäköintiin.
Huoneisto on heti vapaa.
Tarkemmat yhtiön tiedot ja isännöitsijäntodistus saatavilla pyynnöstä.
Kysy lisää ja sovi käynti paikan päälle.
Sami Saraste
Myyntipäällikkö, LKV
sami.saraste@catella.com
050 3014 455
Tilat ovat nykyaikaiset ja avarat. Tilakokonaisuudessa avotilaa, keittiöseinä, varasto ja kolme wc-tilaa. Yhdessä wc-tilassa on inva-wc ja suihku.
Lattiassa on tekstiilimatto ja seinät on maalattu.
Viherhuoneen ikkunat ovat länteen ja huone on rajattavissa muusta tilasta siirrettävilä lasiseinillä.
Tampereen Kannen Opaali on valmistunut vuonna 2022. Yhtiöllä on oma 378 m2 tontti. Rakennuksessa on sekä liike- että asuinhuoneistoja. Yhtiössä on kaukolämpö ja kaukojäähdytysjärjestelmä, koneellinen tulo/poistoilmanvaihto sekä Taloyhtiönetti 50 M.
Keskeinen sijainti Tampereen keskustassa Nokia Arenan vieressä. Etäisyys rautatieasemalle on noin 400 m, Tampereen Yliopiston päärakennukselle, kauppakeskus Ratinaan ja Koskikeskukseen noin 300 m.
Hyvä saavutettavuus erityisesti julkisella liikenteellä. Useiden bussilinjojen ja Tampereen alueen raitiotien pysäkit vain 300 m päässä.
Lähietäisyydellä on myös useita pysäköintilaitoksia, joissa mahdollisuus lyhytaikaiseen tai kuukausipysäköintiin.
Huoneisto on heti vapaa.
Tarkemmat yhtiön tiedot ja isännöitsijäntodistus saatavilla pyynnöstä.
Kysy lisää ja sovi käynti paikan päälle.
Sami Saraste
Myyntipäällikkö, LKV
sami.saraste@catella.com
050 3014 455
Vapautuu
Vapaa
Kerros
2
Ota yhteyttä
Catella Property Oy
Hämeenkatu 13b A, 33100 Tampere
Näytä puhelinnumero
010 5220 100
Sami Saraste
Näytä puhelinnumero
0503014455
Pyydä lisätietoa
