Vuokrataan toimistotilat - Helsinki
Ruoholahdenkatu 8, Ruoholahti, 00180 Helsinki #10855836
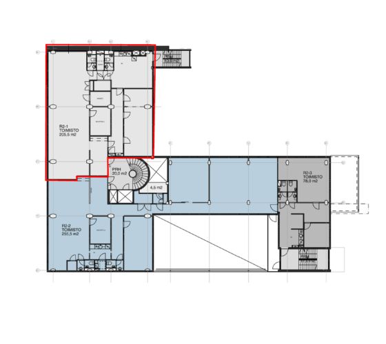
Vuokrattavissa 205 m2 toimistotila Helsingin Ruoholahdesta. Ohessa havainnollistavia kuvia.
Kiinteistö Oy Ruoholahdenkatu 8 tarjoaa liike- ja toimistotilaa hyvällä paikalla Helsingin keskustan tuntumassa. Rakennus on valmistunut vuonna 1956 ja 1964. Tilat on kokonaan peruskorjattu vuonna 2005.
Kiinteistön tehokkaat toimistotilat ovat helposti muunneltavissa käyttäjien tarpeisiin sopiviksi niin avokonttoriksi kuin myös huonetoimistoksi. Rakennuksessa on koneellinen ilmanvaihto ja jäähdytys.
Lisätietoja numerosta 020 7290 710. Lisää kohteita osoitteessa www.premises.fi.
Kohteella ei ole lain edellyttämää energiatodistusta tai energialuokka ei tiedossa.Kerros: 2
CRE PREMISES
Puh. Näytä puhelinnumero 020 7290 710
Vantaankoskentie 14
01670 VANTAA
