Vuokrataan muut tilat - Pori
Herralahdenraitti 1, Herralahti, 28130 Pori #10855787
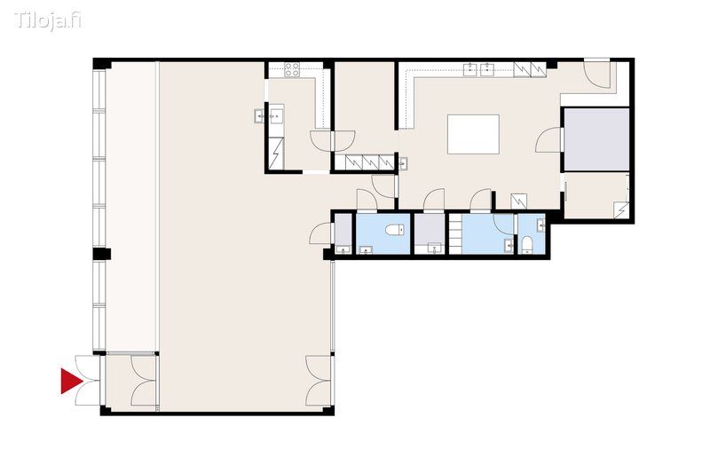
Vuokrataan katutason liiketila Herralahdessa Porin Askokylän alueella. Tämä valoisa ja monikäyttöinen tila sopii erinomaisesti esimerkiksi myymäläksi, kahvilaksi tai ravintolaksi. Aiemmin tila on toiminut lounasravintolana ja se on valmiiksi varusteltu ravintola- ja kahvilatoimintaan. Asiakaspaikkoja on noin 25 hengelle.
Liiketila koostuu asiakastilasta, hyvin varustellusta keittiöstä, kylmiöstä, toimistohuoneesta, sosiaalitiloista, wc:stä ja siivouskomerosta. Kunto on lähes uutta vastaava, joten tila tarjoaa vaivattoman aloituksen uudelle yrittäjälle.
Suurten näyteikkunoiden ansiosta tila näkyy hyvin kadulle ja asiakkaat löytävät sen helposti. Liiketilan edessä on pysäköintipaikkoja, joten asiointi onnistuu kätevästi myös autolla. Sijainti kahden päivittäistavarakaupan naapurissa takaa jatkuvaa asiakasvirtaa ja tekee tästä toimitilasta houkuttelevan vaihtoehdon monenlaiselle liiketoiminnalle.
Vuokraan lisätään alv + kulut.
Ota yhteyttä ja kysy lisää!
www.blanctoimitilat.fi
Masa Hakala
masa.hakala@blanckiinteisto.com
+358 40 964 2482
