Vuokrataan toimistotilat - Helsinki
Eerikinkatu 4, Keskusta, 00100 Helsinki #10855772
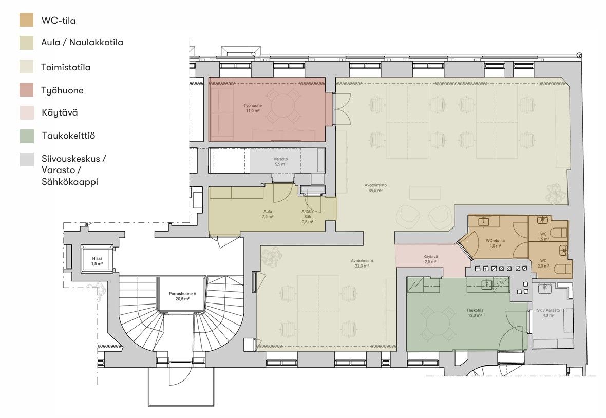
Vuokrataan hyväkuntoinen toimistotila Eerikinkadulta. Tila on juuri täysin remontoitu.
Eerikinkatu 4 on Theodor Höijerin suunnittelema asuin- ja liikerakennus vuodelta 1896. Koko kiinteistö on juuri valmistunut mittavasta peruskorjauksesta, jossa kaikki kiinteistön tilat on remontoitu talon historiaa kunnioittaen.
Talon sisäpihalle on rakennettu viihtyisä viherpiha, joka on talon vuokralaisten käytettävissä. Sisäpihalla sijaitsee myös harvinainen hirsitalo vuodelta 1875.
Loistava sijainti Forumin ja Kampin keskuksen, sekä metroaseman läheisyydessä.
Lisätietoja soita 020 730 4530 tai info@repoint.fi. Palvelumme on tilanhakijalle ilmainen.
Repoint Toimitilat Oy
Itälahdenkatu 22 B, 00210 Helsinki
Näytä puhelinnumero
020 730 4530
Lisätietoja soita Näytä puhelinnumero 020 730 4530 tai info@repoint.fi
https://repoint.fi/