Vuokrataan tuotantotilat, varastotilat - Järvenpää
Emalikatu 10, 04440 Järvenpää #10855770
Järvenpään Vähänummessa vapautuva 953 m² tuotantotila tarjoaa erinomaiset puitteet sujuvaan ja tehokkaaseen arkeen hyvien kulkuyhteyksien varrella
Osoite
Emalikatu 10, 04440 Järvenpää
Tilatyyppi
Tuotantotilaa
953 m2
Varastotilaa
953 m2
Yhteensä
953 m2
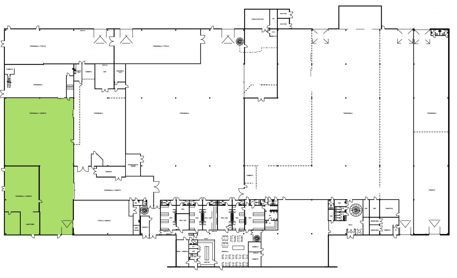
Pohjapiirros
Kiinteistö
Järvenpään Vähänummessa vapautuu 953 m² tuotantotila, joka tarjoaa selkeät ja toimivat puitteet tehokkaaseen arkeen. Viisi maantason nosto-ovea ja noin 6 metrin sisäkorkeus tekevät tilasta joustavan vaihtoehdon tuotantoon, varastointiin tai logistiikkaan.
Alun perin vuonna 1979 rakennettu teollisuus- ja varastokiinteistö tarjoaa toimivat, korkeat tilat, jotka soveltuvat monenlaiseen käyttöön. Tilavissa halleissa on korkeat nosto-ovet, jotka mahdollistavat tehokkaan tavaroiden ja kaluston lastauksen ja purun sekä sujuvoittavat päivittäistä toimintaa.
Toimistotilat sijaitsevat rakennuksen toisessa kerroksessa, mikä luo käytännöllisen erottelun hallinnollisten ja tuotannollisten toimintojen välille. Kiinteistön käyttäjien käytössä on myös lounasravintola, joka tuo lisämukavuutta henkilöstölle ja vierailijoille.
Kiinteistö sijaitsee Järvenpään Vähänummen teollisuusalueella, josta on erinomaiset liikenneyhteydet Helsinki–Lahti-moottoritielle (E75). Tämä mahdollistaa sujuvan ja joustavan logistiikan eri puolille Suomea.
Tilava piha-alue mahdollistaa raskaalle kalustolle helpon kulun ja vaivattoman liikkumisen. Koko tontti on aidattu, mikä parantaa turvallisuutta. Pihalla on myös laaja pysäköintialue.
Alun perin vuonna 1979 rakennettu teollisuus- ja varastokiinteistö tarjoaa toimivat, korkeat tilat, jotka soveltuvat monenlaiseen käyttöön. Tilavissa halleissa on korkeat nosto-ovet, jotka mahdollistavat tehokkaan tavaroiden ja kaluston lastauksen ja purun sekä sujuvoittavat päivittäistä toimintaa.
Toimistotilat sijaitsevat rakennuksen toisessa kerroksessa, mikä luo käytännöllisen erottelun hallinnollisten ja tuotannollisten toimintojen välille. Kiinteistön käyttäjien käytössä on myös lounasravintola, joka tuo lisämukavuutta henkilöstölle ja vierailijoille.
Kiinteistö sijaitsee Järvenpään Vähänummen teollisuusalueella, josta on erinomaiset liikenneyhteydet Helsinki–Lahti-moottoritielle (E75). Tämä mahdollistaa sujuvan ja joustavan logistiikan eri puolille Suomea.
Tilava piha-alue mahdollistaa raskaalle kalustolle helpon kulun ja vaivattoman liikkumisen. Koko tontti on aidattu, mikä parantaa turvallisuutta. Pihalla on myös laaja pysäköintialue.
Vapautuu
Heti
Rakennusvuosi
1979
Kerros
1
Energiatehokkuusluokka
Ei lain edellyttämää energiatodistusta
Näkyvällä paikalla
Lastauslaituri
Ota yhteyttä
ScanReal Oy LKV
Opus Business Park
Hitsaajankatu 24
00810 Helsinki
info@scanreal.fi
Puh:
Näytä puhelinnumero
020 730 8830
Sopivat toimitilat yhdellä otolla!
Kartoitamme toimitilatarpeesi ja etsimme yrityksellesi parhaiten sopivat vapaat toimitilat. Koska vuokranantajat maksavat palvelumme, on tämä yrityksellesi veloituksetonta.
Palvelumme on tilanhakijalle ilmainen
Pyydä lisätietoa
