Vuokrataan toimistotilat - Kempele
Vihikari 10, Oulun Lentokentän Läheisyydessä, 90440 Kempele #10855757
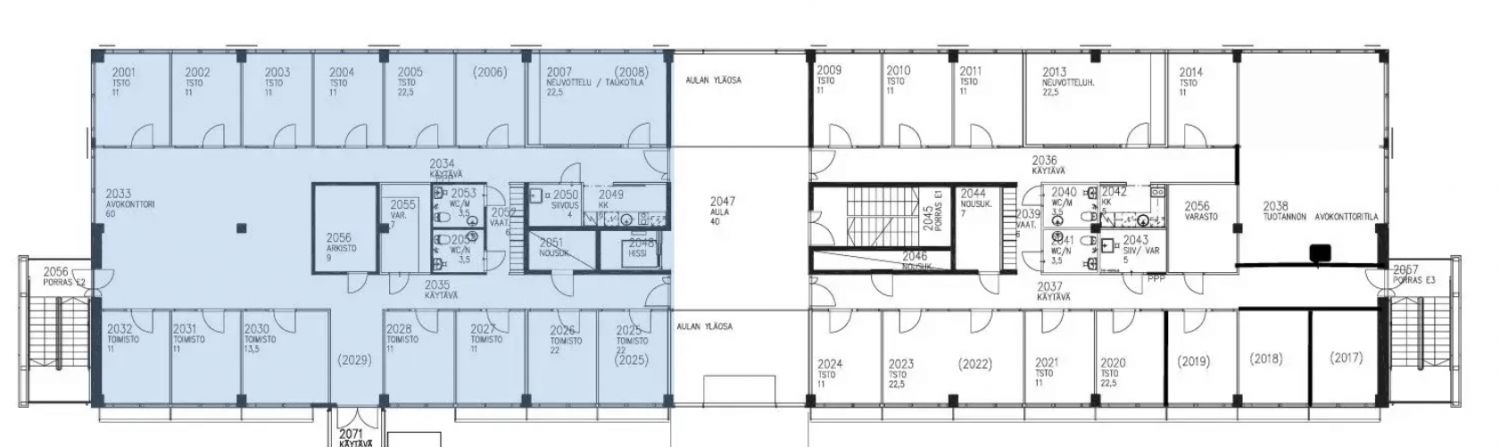
Vuokrattavana erinomaista toimistoa kohteen 2. kerroksesta. Toimitilat ovat jaettavissa käyttäjän tarpeiden mukaan.
Kohteen sijainti on loistava lentokentän ja kattavien palveluiden läheisyydessä.
Osoite
Vihikari 10, 90440 Kempele
Tilatyyppi
Toimistotilaa
432,5 m2
Kiinteistö
Toimitilat Kempele,
vuokrataan toimisto 432,5 m², Kempele
Vuokrattavana erinomaista toimistoa kohteen 2. kerroksesta. Toimitilat ovat jaettavissa käyttäjän tarpeiden mukaan.
Kohteen sijainti on loistava lentokentän ja kattavien palveluiden läheisyydessä. Kiinteistöltä löytyy myös hyvät pysäköintimahdollisuudet.
Kiinteistössä aulapalvelu , lounasravintola ja neuvottelutilat saunaosastoineen.
vuokrataan toimisto 432,5 m², Kempele
Vuokrattavana erinomaista toimistoa kohteen 2. kerroksesta. Toimitilat ovat jaettavissa käyttäjän tarpeiden mukaan.
Kohteen sijainti on loistava lentokentän ja kattavien palveluiden läheisyydessä. Kiinteistöltä löytyy myös hyvät pysäköintimahdollisuudet.
Kiinteistössä aulapalvelu , lounasravintola ja neuvottelutilat saunaosastoineen.
Palvelut
Aulapalvelu, lounasravintola, neuvottelutilat, saunaosasto
Vapautuu
Kysy
Rakennusvuosi
2000
Ota yhteyttä
Sagax Finland
Aleksanterinkatu
Näytä puhelinnumero
19 00100
HELSINKI
Näytä puhelinnumero
010 3200 320
Pyydä lisätietoa
