Uudiskohde
Vuokrataan liiketilat - Helsinki
Hoas Huippu, Tulistimenkatu 1, Keski-Pasila, 00520 Helsinki #10855754
Uusi 442 m² ravintolatila hyvällä paikalla Keski-Pasilassa
Osoite
Tulistimenkatu 1, 00520 Helsinki
Tilatyyppi
Liiketilaa
442 m2
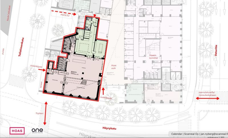
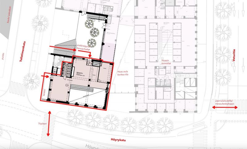
Pohjapiirros
Tila soveltuu
Ravintola
Kiinteistö
Triplan kupeessa, Keski-Pasilassa, vilkkaan Tulistimenkadun ja Höyrykadun risteyksessä sijaitseva Hoas Huipun ravintolatila tarjoaa erinomaiset puitteet monenlaiselle ravintolatoiminnalle.
Tilaan voidaan yhdistää myös toisen kerroksen 195,5 m² tila (442 m² + 195,5 m²=637,5 m²).
Ravintolan potentiaali työpaikkaruokailun osalta on huomattava. Samassa rakennuksessa toimii Hoasin pääkonttori, jossa on noin 90 työntekijää. Lisäksi sekä Länsi- että Itä-Pasilan yritysalueet tuovat alueelle runsaasti lounaskävijöitä. Messukeskus, joka sijaitsee aivan radan toisella puolella, tuo alueelle jatkuvasti tapahtumakävijöitä. Lisäksi kesällä avautuva Helsinki Areena kasvattaa asiakasvirtoja entisestään. Ravintola voi myös toimia Hoasin tilaisuuksien tarjoilukumppanina – olipa kyseessä kokoustarjoilut, yritystilaisuudet tai illanvietot.
Kasvava asukasmäärä, alueen kehitys ja monipuolinen asiakaskunta tekevät Hoas Huipun ravintolatilasta houkuttelevan mahdollisuuden ravintoloitsijalle, joka haluaa yhdistää laadukkaan ruoan, keskeisen sijainnin ja monipuoliset asiakasvirrat.
Rakennuksen arvioitu valmistuminen 03/2026, jonka jälkeen tiloja pääsee kalustamaan.
Ravintolan keittiön laitteista on huuva asennettuna, mutta kaikki muu on ravintoloitsijan sinne toimitettava itse.
Tilaan voidaan yhdistää myös toisen kerroksen 195,5 m² tila (442 m² + 195,5 m²=637,5 m²).
Ravintolan potentiaali työpaikkaruokailun osalta on huomattava. Samassa rakennuksessa toimii Hoasin pääkonttori, jossa on noin 90 työntekijää. Lisäksi sekä Länsi- että Itä-Pasilan yritysalueet tuovat alueelle runsaasti lounaskävijöitä. Messukeskus, joka sijaitsee aivan radan toisella puolella, tuo alueelle jatkuvasti tapahtumakävijöitä. Lisäksi kesällä avautuva Helsinki Areena kasvattaa asiakasvirtoja entisestään. Ravintola voi myös toimia Hoasin tilaisuuksien tarjoilukumppanina – olipa kyseessä kokoustarjoilut, yritystilaisuudet tai illanvietot.
Kasvava asukasmäärä, alueen kehitys ja monipuolinen asiakaskunta tekevät Hoas Huipun ravintolatilasta houkuttelevan mahdollisuuden ravintoloitsijalle, joka haluaa yhdistää laadukkaan ruoan, keskeisen sijainnin ja monipuoliset asiakasvirrat.
Rakennuksen arvioitu valmistuminen 03/2026, jonka jälkeen tiloja pääsee kalustamaan.
Ravintolan keittiön laitteista on huuva asennettuna, mutta kaikki muu on ravintoloitsijan sinne toimitettava itse.
Vapautuu
01.04.2026
Rakennusvuosi
2026 (uudiskohde)
Kerros
1
Energiatehokkuusluokka
Ei lain edellyttämää energiatodistusta
Uudiskohde
Katutasossa
Ota yhteyttä
ScanReal Oy LKV
Opus Business Park
Hitsaajankatu 24
00810 Helsinki
info@scanreal.fi
Puh:
Näytä puhelinnumero
020 730 8830
Sopivat toimitilat yhdellä otolla!
Kartoitamme toimitilatarpeesi ja etsimme yrityksellesi parhaiten sopivat vapaat toimitilat. Koska vuokranantajat maksavat palvelumme, on tämä yrityksellesi veloituksetonta.
Palvelumme on tilanhakijalle ilmainen
Pyydä lisätietoa
