Vuokrataan toimistotilat - Helsinki
Panuntie 4, Oulunkylä, 00610 Helsinki #10855571
Modernia toimistotilaa Helsingin Käpylässä, loistavien kulkuyhteyksien varrella
Osoite
Panuntie 4, 00610 Helsinki
Tilatyyppi
Toimistotilaa
752 m2
Kiinteistö
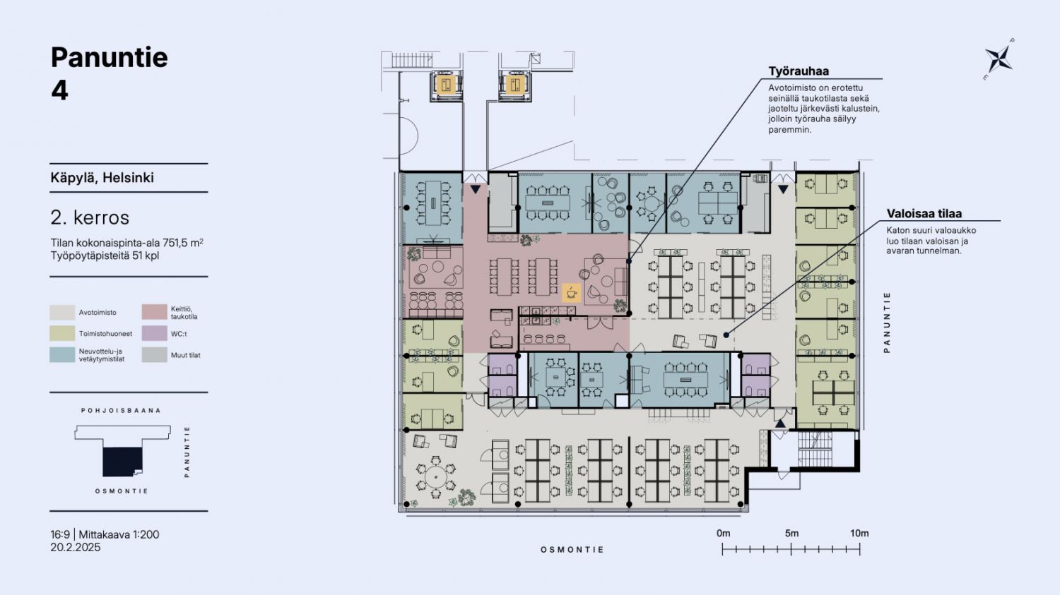
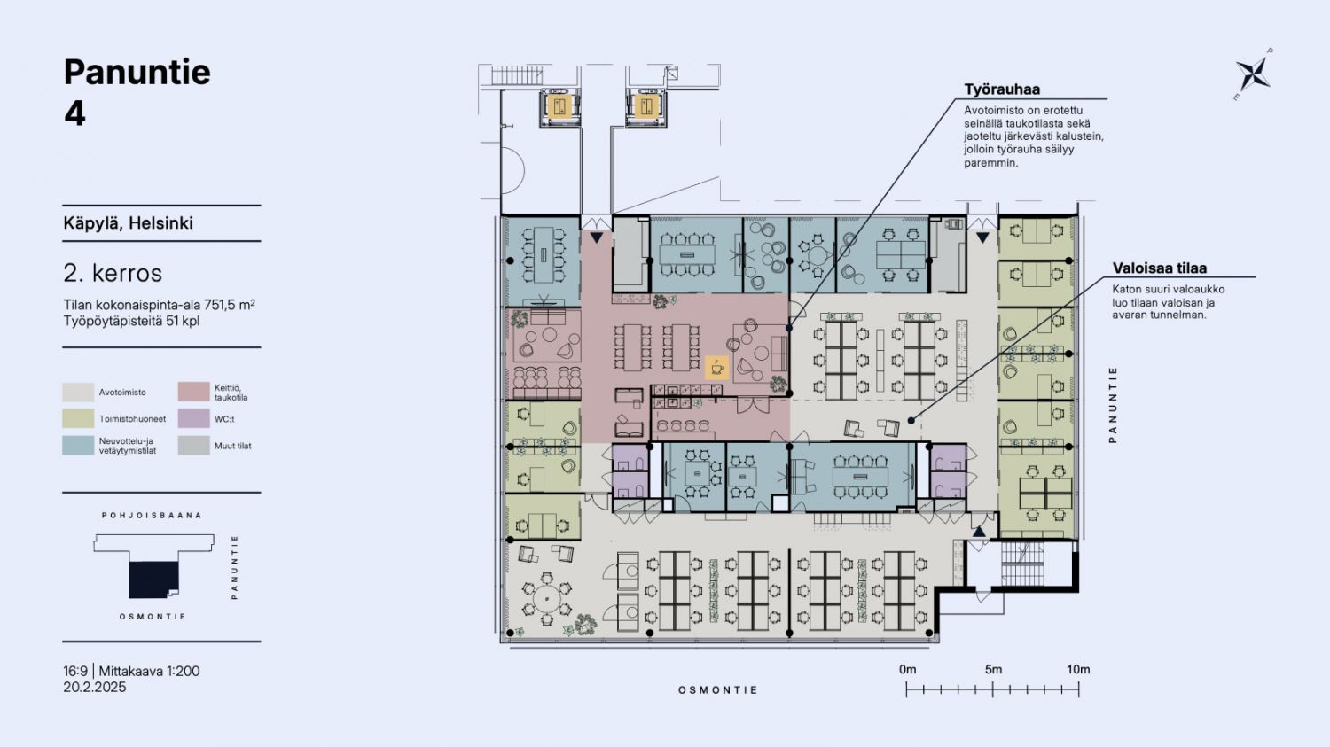
Vuokrattavissa valoisa toisen kerroksen toimistotila, joka suunnitellaan ja remontoidaan tulevan käyttäjän tarpeiden ja toiveiden pohjalta. Tila on myös mahdollista jakaa pienempiin 350,5 m² ja 401 m² osioihin tai vuokrata isompana kokonaisuutena yhdessä sen yläpuolella sijaitsevan 711,5 m² toimistotilan kanssa.
Panuntie 4 on moderni toimistotalo Helsingin Käpylässä. Kiinteistössä on aulapalvelu, lounasravintola ja neuvottelu- ja kokoustiloja. Kellarikerroksessa on kuntosali ja suihkutilat.
Panuntie 4 on moderni toimistotalo Helsingin Käpylässä. Kiinteistössä on aulapalvelu, lounasravintola ja neuvottelu- ja kokoustiloja. Kellarikerroksessa on kuntosali ja suihkutilat.
Sijainti
Toimistokiinteistö sijaitsee kätevästi Käpylän juna-aseman yhteydessä, joten paikalle on helppo saapua junalla tai bussilla. Oman auton saa myös helposti parkkiin pihalle tai parkkihalliin.
Pysäköinti
Parkkipaikkoja saatavilla.
Palvelut
Auditorio, Aulapalvelu, Catering-palveluita, Info-piste, Kuntosali, Lounasravintola, Polkupyörävarasto, Vuokrattavat kokoustilat, Yhteiset sosiaalitilat, Yleisiä työskentelytiloja
Vapautuu
Kysy
Rakennusvuosi
2002
Kerros
2
Energiatehokkuusluokka
D
Ympäristöluokitus
Ympäristösertifikaatit: BREEAM In-Use (Part 1), EXCELLENT. BREEAM In-Use (Part 2), GOOD.
Ota yhteyttä
Moodi Toimitilat – eQ Kiinteistöt
Mari Ryyppö
Näytä puhelinnumero
+358 50 513 5400
Näytä puhelinnumero
+358 50 513 5400
Pyydä lisätietoa
