Vuokrataan liiketilat - Kuopio
Volttikatu 4, Savilahti, 70700 Kuopio #10855165
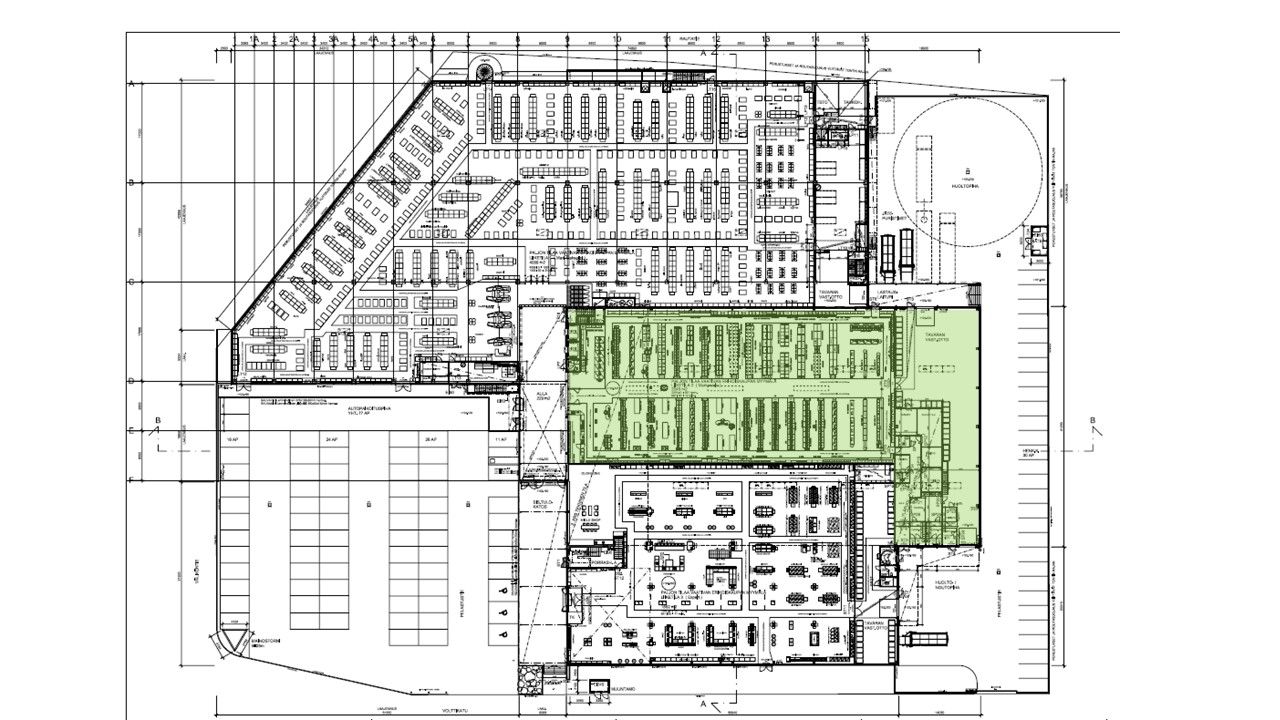
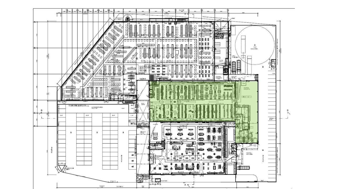
Tämä 2043 m² tilakokonaisuus tarjoaa hyvin muunneltavissa olevan pohjaratkaisun suurempien yritysten tarpeisiin.
Tila sopii esimerkiksi myymäläksi, asiantuntijaorganisaatiolle tai monitoimitilaksi.
Tila vapautuu 1.12.2026.
Volttikatu 4 sijaitsee Kuopion Savalähden alueella, joka tunnetaan kehittyvänä ja yritysystävällisenä ympäristönä.
Kiinteistö tarjoaa joustavia toimisto- ja yritystiloja useaan eri tarpeeseen:
- Toimivat ja valoisat työtilat, jotka soveltuvat monenlaiseen yritystoimintaan.
- Autopaikkoja sekä pihalla että hallissa.
- Mahdollisuus räätälöidä tilaratkaisuja vuokralaisen tarpeiden mukaan.
Savilahti on yksi Kuopion strategisesti tärkeimmistä yritysalueista. Kiinteistö sijaitsee logistisesti erinomaisella paikalla, ja alueen palvelut sekä liikenneyhteydet palvelevat hyvin suuria ja kasvavia yrityksiä.
