Vuokrataan toimistotilat - Helsinki
Ruosilankuja 3, Konala, 00390 Helsinki #10855130
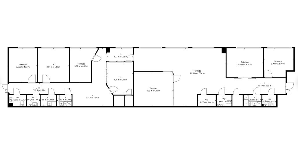
RUOSILANKUJA 3 - toimistotila 261m2
Vuokrattavana katutason toimistotila Konalasta.
Tilakokonaisuudessa erikokoisia toimistohuoneita, 4 WC-tilaa, erillinen suihku ja kaksi keittokomeroa.
Tilaan on käynnit molemmista päädyistä.
Lattia uusitaan tulevan käyttäjän toiveiden mukaiseksi.
Lisätiedot ja kohdenäytöt: p. 040 7070 321 / HeikkiKerros: 1
Osoite
Ruosilankuja 3, 00390 Helsinki
Tilatyyppi
Toimistotilaa
261 m2
Kulkuyhteydet
Kiinteistöllä on erinomaiset liikenneyhteydet:
- Malminkartanon juna-asema 1,2 km päässä
- Bussipysäkit 0,2 - 1 km etäisyydellä (30/36/37/59/300/321/345/385A/U385A)
- Joka suuntaan turvalliset pyörätiet ja pihassa tilaa säilyttää pyöriä
- Hyvät yhteydet Helsingin keskustaan
- Lyhyt matka Helsinki-Vantaan lentokentälle
- Malminkartanon juna-asema 1,2 km päässä
- Bussipysäkit 0,2 - 1 km etäisyydellä (30/36/37/59/300/321/345/385A/U385A)
- Joka suuntaan turvalliset pyörätiet ja pihassa tilaa säilyttää pyöriä
- Hyvät yhteydet Helsingin keskustaan
- Lyhyt matka Helsinki-Vantaan lentokentälle
Ota yhteyttä
CRE PREMISES
Puh. Näytä puhelinnumero 020 7290 710
Vantaankoskentie 14
01670 VANTAA
Pyydä lisätietoa
