Vuokrataan liiketilat - Helsinki
Tyynenmerenkatu 3, Jätkäsaari, 00220 Helsinki #10855093
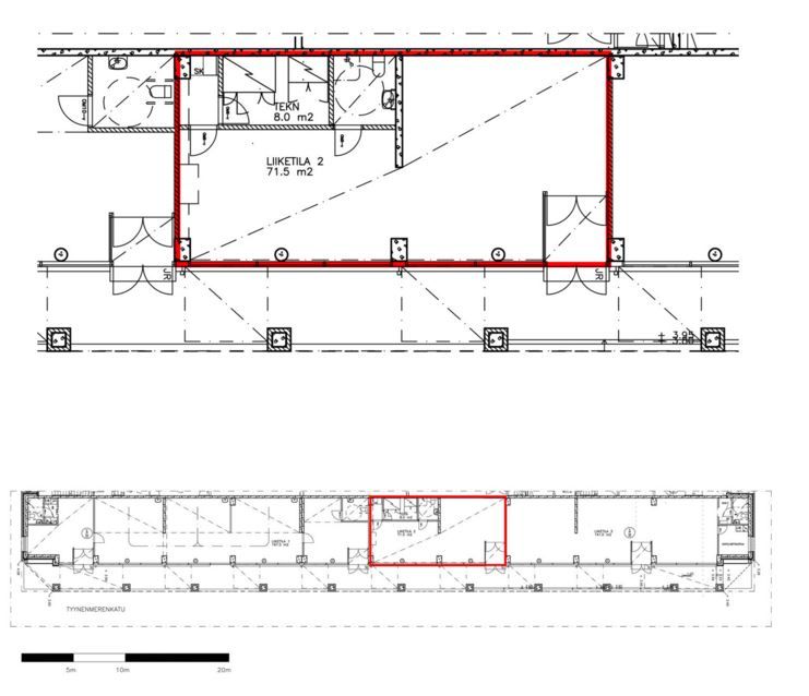
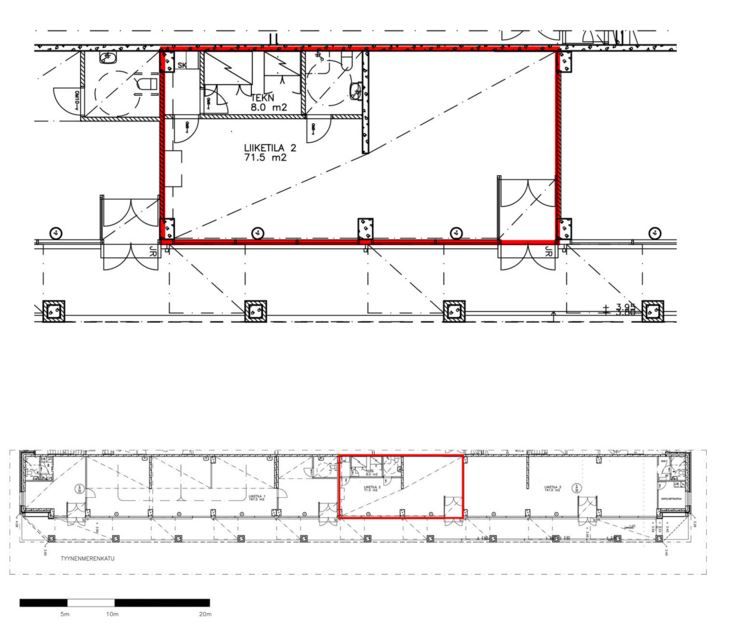
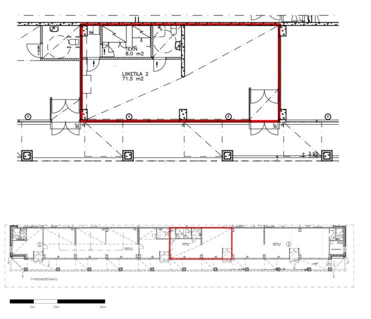
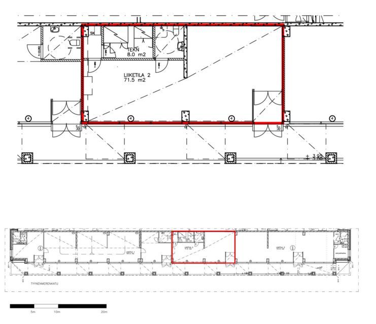
Liiketila uudehkon asuin- ja liikekiinteistön katutasossa, Jätkäsaaren trendikkäässä ja elävässä kaupunginosassa aivan Helsingin ydinkeskustan tuntumassa. Tila ei sovellu ravintolatilaksi.
Lähistöltä löytyy ravintoloita ja kahviloita. Kävelymatkan päässä Ruoholahden kauppakeskus ja Hietalahden tori sekä tunnelmallinen kauppahalli. Jätkäsaaren alueelle on monipuoliset julkiset ja kevyen liikenteen kulkuyhteydet: raitiolinjan pysäkki on aivan talon edessä ja metroasema on kivenheiton päässä Ruoholahdessa.
Lisätiedot 020 7290 710, lisää kohteita www.premises.fi
Energialuokka D.Kerros: katu
CRE PREMISES
Puh. Näytä puhelinnumero 020 7290 710
Vantaankoskentie 14
01670 VANTAA
