Vuokrataan toimistotilat - Helsinki
Helsingin Salmisaarenaukio 1, Salmisaarenaukio 1, Kamppi - Ruoholahti, 00180 Helsinki #10855039
Monitilatoimisto merinäköalalla. Valoisassa tilassa on suuret ikkunat kolmeen suuntaan. Tilaratkaisu on muutettavissa toiveiden mukaiseksi.
Osoite
Salmisaarenaukio 1, 00180 Helsinki
Tilatyyppi
Toimistotilaa
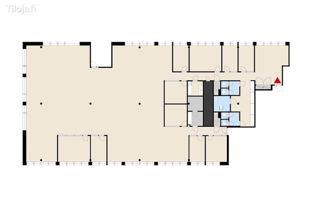
658 m2
Muuta
Salmisaarenaukion kiinteistö sijaitsee Helsingin Salmisaaressa osoitteessa Salmisaarenaukio 1. Salmisaari ja Ruoholahti ovat alunperin teollisuus- ja varastoaluetta, joka on muuttunut 1990- ja 2000-luvuilla tärkeäksi yrityselämän keskittymäksi, jossa työskentelee noin 14 000 ihmistä. Täällä kohtaavat historiallinen urbaani alue meren äärellä, teollinen ympäristö sekä huippumodernit pääkonttoritason toimistot. Salmisaari on Helsingin tärkein pääkonttorikeskittymä keskustan ohella. Alueella pääkonttoriansa pitävät mm. Varma, Ilmarinen, Wärtsilä, F-Secure, Cargotec, Outokumpu, Altia, Accenture, Supercell, Kemira ja Deloitte.
Vuonna 2007 valmistunut Salmisaarenaukio 1 rakennettiin alun perin korkeatasoiseksi pääkonttorikiinteistöksi. Kiinteistön on suunnitellut arkkitehtitoimisto Helin & Co Architects. Salmisaarenaukio tarjoaa tyylikkäät ja muuntojoustavat toimitilat, jotka voidaan suunnitella asiakkaiden tarpeiden ja toiveiden mukaisesti. Kiinteistön upeista, koko seinän kokoisista ikkunoista avautuu mahtava merimaisema kohti Lauttasaarta.
Salmisaarenaukio 1 on sertifioitu kansainvälisellä Breeam In Use -ympäristösertifikaatilla.
Tarvittavat pysäköintipaikat löytyvät suoran hissiyhteyden päästä, kiinteistön välittömässä yhteydessä sijaitsevasta lämpimästä pysäköintihallista.
Vuonna 2007 valmistunut Salmisaarenaukio 1 rakennettiin alun perin korkeatasoiseksi pääkonttorikiinteistöksi. Kiinteistön on suunnitellut arkkitehtitoimisto Helin & Co Architects. Salmisaarenaukio tarjoaa tyylikkäät ja muuntojoustavat toimitilat, jotka voidaan suunnitella asiakkaiden tarpeiden ja toiveiden mukaisesti. Kiinteistön upeista, koko seinän kokoisista ikkunoista avautuu mahtava merimaisema kohti Lauttasaarta.
Salmisaarenaukio 1 on sertifioitu kansainvälisellä Breeam In Use -ympäristösertifikaatilla.
Tarvittavat pysäköintipaikat löytyvät suoran hissiyhteyden päästä, kiinteistön välittömässä yhteydessä sijaitsevasta lämpimästä pysäköintihallista.
Vapautuu
Kysy
Rakennusvuosi
2007
Kerros
4
Ota yhteyttä
Infonia Oy
Itsehallintokuja 4, 02600 Espoo
Näytä puhelinnumero
+358404551390
Leena Juhola
Pyydä lisätietoa
