Vuokrataan toimistotilat - Helsinki
Valimo, Valimotie 17-19, Pitäjänmäen Teollisuusalue, 00380 Helsinki #10855003
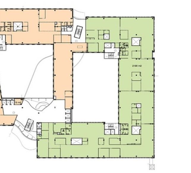
Suuri toimistokokonaisuus yhdessä tasossa, Valimon 4. kerroksessa!
Osoite
Valimotie 17-19, 00380 Helsinki
Tilatyyppi
Toimistotilaa
2190 m2
Muuta
Kiinteistö Oy Helsingin Valimotie 17-19 on valmistunut peruskorjauksesta vuonna 2023 ja tunnistetaan nykyisin nimellä VALIMO. Pitäjänmäen Valimo on huolella uudistettu toimistorakennus valmiina tuleville menestystarinoille. Valimossa yhdistyvät laadukkaat, viihtyisät toimistotilat ja tehokkaat tilaratkaisut.
Kiinteistön palvelut ovat erittäin monipuoliset. Ammattimainen aulapalvelu on osaltaan myös yrityksesi käyntikortti - Valimossa aulapalveluista huolehtivat osaavat ja ystävälliset asiakaspalvelun ammattilaiset. He pitävät huolta muun muassa vastaanotosta, kokouspalveluista, postituksesta ja useista toimistotehtävistä. Rakennuksen 280-paikkainen lounasravintola tarjoaa maittavaa ruokaa arkisin. Lounastarjoilun lisäksi ravintolasta
saa aamiaista ja ravintola toimittaa sovittaessa myös kokoustarjoilut myös neuvottelutiloihin, saunaosastolle, saunaosastolle tai tarvittaessa myös vuokralaisten omiin tiloihin.
Valimon eräs ylpeys on monipuolinen ja hyvin varusteltu kuntosali, jossa on mahdollista treenata päivän aluksi, töiden lomassa tai päivän päätteeksi. Alakerran liikunta- ja saunatilojen yhteydessä on myös uima-allas, jossa kiinteistön vuokralaiset voivat vapaasti käydä virkistävällä uinnilla, tai vaikka pulahtamassa porealtaaseen.
Valimon tilaratkaisut sopivat erinomaisesti erilaisille yrityksille ja toimialoille. Omien toimitilojen lisäksi tarjolla on runsaasti muun muassa varattavia kokous- ja työtiloja. Kaikissa ratkaisuissa on pyritty korostamaan laadukkuutta ja kokonaisvaltaista viihtyisyyttä.
Valimon keskeinen sijainti takaa lyhyet etäisyydet pääkaupunkiseudulla. Liikenneyhteydet Valimoon ovat erinomaiset, sinne on helppo tulla ja sieltä pääsee kätevästi kaikkialle. Junan ja bussilinjojen lisäksi Raide-jokeri yhdistää Itäkeskuksen ja Keilaniemen Pitäjänmäen kautta. Autoilijoille kiinteistö tarjoaa 454 autopaikkaa.
Kiinteistön palvelut ovat erittäin monipuoliset. Ammattimainen aulapalvelu on osaltaan myös yrityksesi käyntikortti - Valimossa aulapalveluista huolehtivat osaavat ja ystävälliset asiakaspalvelun ammattilaiset. He pitävät huolta muun muassa vastaanotosta, kokouspalveluista, postituksesta ja useista toimistotehtävistä. Rakennuksen 280-paikkainen lounasravintola tarjoaa maittavaa ruokaa arkisin. Lounastarjoilun lisäksi ravintolasta
saa aamiaista ja ravintola toimittaa sovittaessa myös kokoustarjoilut myös neuvottelutiloihin, saunaosastolle, saunaosastolle tai tarvittaessa myös vuokralaisten omiin tiloihin.
Valimon eräs ylpeys on monipuolinen ja hyvin varusteltu kuntosali, jossa on mahdollista treenata päivän aluksi, töiden lomassa tai päivän päätteeksi. Alakerran liikunta- ja saunatilojen yhteydessä on myös uima-allas, jossa kiinteistön vuokralaiset voivat vapaasti käydä virkistävällä uinnilla, tai vaikka pulahtamassa porealtaaseen.
Valimon tilaratkaisut sopivat erinomaisesti erilaisille yrityksille ja toimialoille. Omien toimitilojen lisäksi tarjolla on runsaasti muun muassa varattavia kokous- ja työtiloja. Kaikissa ratkaisuissa on pyritty korostamaan laadukkuutta ja kokonaisvaltaista viihtyisyyttä.
Valimon keskeinen sijainti takaa lyhyet etäisyydet pääkaupunkiseudulla. Liikenneyhteydet Valimoon ovat erinomaiset, sinne on helppo tulla ja sieltä pääsee kätevästi kaikkialle. Junan ja bussilinjojen lisäksi Raide-jokeri yhdistää Itäkeskuksen ja Keilaniemen Pitäjänmäen kautta. Autoilijoille kiinteistö tarjoaa 454 autopaikkaa.
Vapautuu
Kysy
Rakennusvuosi
1993
Kerros
4
Ota yhteyttä
Infonia Oy
Itsehallintokuja 4, 02600 Espoo
Näytä puhelinnumero
+358404551390
Leena Juhola
Pyydä lisätietoa
