Vuokrataan toimistotilat - Helsinki
Kaisaniemenkatu 6, Helsinki Keskusta - Etu-Töölö, 00100 Helsinki #10854991
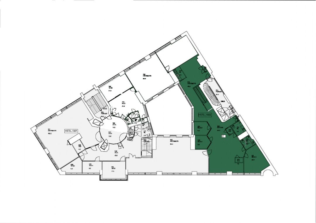
Avotoimisto, jossa neuvotteluhuoneita. Sisäänkäynti Kaisaniemenkatu 6 B , ei esteetön sisäänkäynti.
Osoite
Kaisaniemenkatu 6, 00100 Helsinki
Tilatyyppi
Toimistotilaa
188 m2
Muuta
Helsingin keskustan Kaisaniemessä sijaitseva Kaisaniemenkatu 6 tarjoaa siistiä ja viihtyisää toimistotilaa joka pitää sisällään nykypäivän työtapoja tukevia avotiloja, erikokoisia työ- ja neuvotteluhuoneita. Tiloissa runsaasti ikkunoita, joista näkymät useaan eri suuntaan. Tilat ovat joustavasti muokattavissa yrityksesi tarpeen mukaan.
Oiva Kallion suunnittelema ja vuonna 1930 valmistunut rakennus Kluuvissa, Kaisaniemenkadun ja Vuorimiehenkadun kulmauksessa on näkyvällä paikalla Hakaniemeen johtavan tien varrella erinomaisten julkisten liikenneyhteyksien varrella.
Kohteeseen on helppo saapua mistä päin tahansa, sillä läheltä löytyy päärautatieasema sekä rautatientorin linja-autoasema, metro- ja raitiovaunupysäkit. Autoilijoille löytyy parkkitilaa keskustan lukuisista pysäköintihalleista. Metroasema alle 100 m, Raitiovaunupysäkki 100 m, Bussipysäkki 200 m, Juna-asema 400 m, Lentoasema 19,4 km.
Oiva Kallion suunnittelema ja vuonna 1930 valmistunut rakennus Kluuvissa, Kaisaniemenkadun ja Vuorimiehenkadun kulmauksessa on näkyvällä paikalla Hakaniemeen johtavan tien varrella erinomaisten julkisten liikenneyhteyksien varrella.
Kohteeseen on helppo saapua mistä päin tahansa, sillä läheltä löytyy päärautatieasema sekä rautatientorin linja-autoasema, metro- ja raitiovaunupysäkit. Autoilijoille löytyy parkkitilaa keskustan lukuisista pysäköintihalleista. Metroasema alle 100 m, Raitiovaunupysäkki 100 m, Bussipysäkki 200 m, Juna-asema 400 m, Lentoasema 19,4 km.
Vapautuu
Kysy
Kerros
5
Ota yhteyttä
Infonia Oy
Itsehallintokuja 4, 02600 Espoo
Näytä puhelinnumero
+358404551390
Leena Juhola
Pyydä lisätietoa
