Vuokrataan toimistotilat - Espoo
Kiinteistö Oy Monitoimitilat Friisinmäentie 5, Friisinmäentie 5, Etelä-Leppävaara, 02600 Espoo #10854970
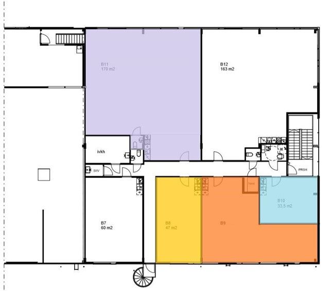
2. kerroksen toimistotila, joka soveltuu erinomaisesti esimerkiksi palveluliiketoimintaan, myyntikonttoriksi. Tilassa minikeittiö
Osoite
Friisinmäentie 5, 02600 Espoo
Tilatyyppi
Toimistotilaa
163 m2
Muuta
Uutta toimistotilaa näkyvällä paikalla aivan Turunväylän (valtatie 1) varrella uuden Laajalahden liittymän (Turvesolmu) kohdalla, Kehä I:n ja Leppävaaran läheisyydessä.
Friisimäentieltä löydät yrityksellesi edustavat toimistotilat hyvällä sijainnilla, Leppävaaran monipuolisten palvelujen läheltä. Kiinteistön pihalla vuokraan sisältyvää pysäköintitilaa. Modernit toimistotilat ovat kustannustehokkaat ja muuntautumiskykyiset.
Kiinteistössä toimivat jo mm. Minimo Arkkitehdit Oy, Autoklinikka koulutustiloineen, Espoon Autohuolto, Conorin Oy, HelppoKatsastus ja Pohjanmaan Grilli.
Friisimäentieltä löydät yrityksellesi edustavat toimistotilat hyvällä sijainnilla, Leppävaaran monipuolisten palvelujen läheltä. Kiinteistön pihalla vuokraan sisältyvää pysäköintitilaa. Modernit toimistotilat ovat kustannustehokkaat ja muuntautumiskykyiset.
Kiinteistössä toimivat jo mm. Minimo Arkkitehdit Oy, Autoklinikka koulutustiloineen, Espoon Autohuolto, Conorin Oy, HelppoKatsastus ja Pohjanmaan Grilli.
Vapautuu
Kysy
Kerros
2
Ota yhteyttä
Infonia Oy
Itsehallintokuja 4, 02600 Espoo
Näytä puhelinnumero
+358404551390
Leena Juhola
Pyydä lisätietoa
