Vuokrataan liiketilat - Helsinki
Asunto Oy Linnankoskenkatu 4, Linnankoskenkatu 4, Taka-Töölö, 00250 Helsinki #10854963
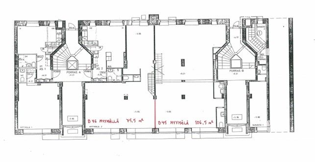
Asunto Oy Linnankoskenkatu 4:n kivijalassa liiketila (B46), jossa isot ikkunat vehreälle kadulle. Kokonaisneliöt 131,5 josta katutason liiketilaa 75,5 ja kellarikerroksessa n. 56 m2 varastotilaa.
Osoite
Linnankoskenkatu 4, 00250 Helsinki
Tilatyyppi
Liiketilaa
75,5 m2
Muuta
Linnankoskenkatu 4 sijaitsee Taka-Töölössä, kantakaupungin runsaiden palveluiden läheisyydessä. Linnakosken puisto sekä Töölön monipuoliset mahdollisuudet ovat kävelymatkan päässä. Hyvät julkiset liikenneyhteydet "kivenheiton päässä" mm. Mannerheimintiellä, jossa kulkevat lukuisat bussi- ja raitiovaunulinjat.
Vapautuu
Kysy
Rakennusvuosi
1937
Kerros
1
Ota yhteyttä
Infonia Oy
Itsehallintokuja 4, 02600 Espoo
Näytä puhelinnumero
+358404551390
Leena Juhola
Pyydä lisätietoa
