Vuokrataan toimistotilat - Helsinki
Valimo 1, Valimotie 1, Pitäjänmäen Teollisuusalue, 00380 Helsinki #10854942
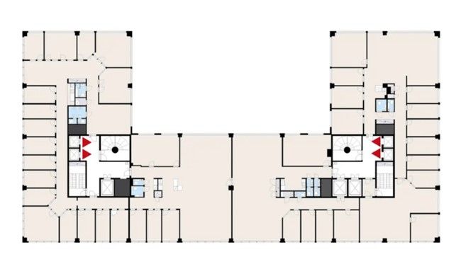
Vuokralaisen tarpeiden mukaan moderniksi saneerattavissa avara toimistotila kiinteistön 4. kerroksessa. Tila kattaa koko kerroksen ja voidaan jakaa myös pienempiin kokonaisuuksiin 3-4 käyttäjälle.
Osoite
Valimotie 1, 00380 Helsinki
Tilatyyppi
Toimistotilaa
1545 m2
Muuta
Valimo 1 tarjoaa remontoitua viihtyisää jäähdytettyä toimistotilaa Pitäjänmäellä, joka on pääkaupunkiseudun suurimpia toimistokeskittymiä yhteensä noin 19 000 työpaikallaan. Valimo 1:ssä kanssasi toimii muun muassa IT-alan, teollisuus- ja rakennusalan sekä hyvinvointi- ja terveysalan yrityksiä ja yrittäjiä.
Valimotielle on helppo saapua: Useat junat pysähtyvät Pitäjänmäen juna-asemalle ja Raide-jokeri tuo sinut aivan pääoven eteen. Valimo 1:ssä on 160 pysäköintipaikkaa, joista 140 on lämpimässä autohallissa. Vuokralaisten vierailla on mahdollisuus maksuttomaan pysäköintiin piha-alueella.
Vuonna 1976 valmistunut ja sittemmin kattavasti modernisoitu Valimotie 1 on 7-kerroksinen toimistokiinteistö Pitäjänmäellä, näkyvällä paikalla Pitäjänmäentien ja Valimotien kulmassa. Rakennuksen julkisivu uudistettiin 2011 ja myös rakennuksen sisäänkäynnit, aulat ja opasteet on uusittu vastikään. Kellarikerroksessa on varastotiloja, sosiaalitilat ja pukukaappeja.
Kiinteistö tarjoaa yrityksille tyylikkäät ja toimivat tilat, jotka viimeistellään vuokralaisten tarpeiden mukaan. Yhden kerroksen ala 1459 m2 voidaan vuokrata yhdelle käyttäjälle tai jakaa alkaen 250 m2 kokoisiin huoneistoihin, jotka voivat koostua huoneista, avotilasta tai niiden yhdistelmistä. Kaikissa tiloissa on jäähdytys ja ne on varustettu Cat6-kaapeloinnilla. Kaikkiin kerroksiin on henkilö- ja tavarahissiyhteys (4 henkilöhissiä, 3 tavarahissiä). Tavaratoimituksia varten on myös oma lastauslaituri kiinteistön sisäpihalla.
Ensimmäisen kerroksen lounasravintola tarjoaa talon henkilöstölle maittavaa ruokaa. Alueella on myös useita muita tasokkaita lounasravintoloita, sekä laaja tarjonta muita toimistotyöntekijöille suunnattuja palveluja kuten useampi kuntosali sekä Talin alue tennis- ja golfkenttineen ja lenkkipolkuineen, jotka ovat aivan kulman takana. Taitotalon laadukas kokous- ja kongressikeskus tarjoaa alueen yrityksille monipuolisesti kokouspalveluita jopa konferenssien järjestämiseen saakka.
Valimotielle on helppo saapua: Useat junat pysähtyvät Pitäjänmäen juna-asemalle ja Raide-jokeri tuo sinut aivan pääoven eteen. Valimo 1:ssä on 160 pysäköintipaikkaa, joista 140 on lämpimässä autohallissa. Vuokralaisten vierailla on mahdollisuus maksuttomaan pysäköintiin piha-alueella.
Vuonna 1976 valmistunut ja sittemmin kattavasti modernisoitu Valimotie 1 on 7-kerroksinen toimistokiinteistö Pitäjänmäellä, näkyvällä paikalla Pitäjänmäentien ja Valimotien kulmassa. Rakennuksen julkisivu uudistettiin 2011 ja myös rakennuksen sisäänkäynnit, aulat ja opasteet on uusittu vastikään. Kellarikerroksessa on varastotiloja, sosiaalitilat ja pukukaappeja.
Kiinteistö tarjoaa yrityksille tyylikkäät ja toimivat tilat, jotka viimeistellään vuokralaisten tarpeiden mukaan. Yhden kerroksen ala 1459 m2 voidaan vuokrata yhdelle käyttäjälle tai jakaa alkaen 250 m2 kokoisiin huoneistoihin, jotka voivat koostua huoneista, avotilasta tai niiden yhdistelmistä. Kaikissa tiloissa on jäähdytys ja ne on varustettu Cat6-kaapeloinnilla. Kaikkiin kerroksiin on henkilö- ja tavarahissiyhteys (4 henkilöhissiä, 3 tavarahissiä). Tavaratoimituksia varten on myös oma lastauslaituri kiinteistön sisäpihalla.
Ensimmäisen kerroksen lounasravintola tarjoaa talon henkilöstölle maittavaa ruokaa. Alueella on myös useita muita tasokkaita lounasravintoloita, sekä laaja tarjonta muita toimistotyöntekijöille suunnattuja palveluja kuten useampi kuntosali sekä Talin alue tennis- ja golfkenttineen ja lenkkipolkuineen, jotka ovat aivan kulman takana. Taitotalon laadukas kokous- ja kongressikeskus tarjoaa alueen yrityksille monipuolisesti kokouspalveluita jopa konferenssien järjestämiseen saakka.
Vapautuu
Kysy
Rakennusvuosi
1976
Kerros
4
Ota yhteyttä
Infonia Oy
Itsehallintokuja 4, 02600 Espoo
Näytä puhelinnumero
+358404551390
Leena Juhola
Pyydä lisätietoa
