Vuokrataan toimistotilat - Helsinki
Mikonkatu 13, Helsinki Keskusta - Etu-Töölö, 00100 Helsinki #10854892
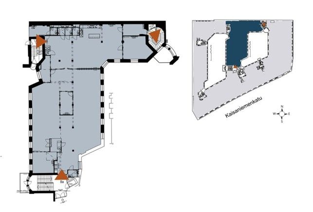
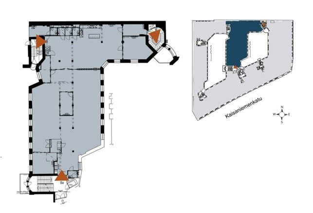
Muuttovalmis ja hiljattain remontoitu 3. kerroksen toimistotila jossa avotilaa ja muutama erillishuone. Rauhallinen sijainti sisäpihan siivessä.
Osoite
Mikonkatu 13, 00100 Helsinki
Tilatyyppi
Toimistotilaa
408 m2
Muuta
Mikonkatu 13 on Osuuspankin talonakin tunnettu, kulttuurihistoriallisesti merkittävä ja suojeltu kiinteistökokonaisuus. Rautatientorin laidalla seisova lähes 100-vuotinen maamerkki sijaitsee Mikonkadun ja Kaisaniemen kadun kulmauksessa, keskellä Helsingin vilkkainta ydinkeskustaa.
Arkkitehti W. G. Palmqvistin vuosina 1924 - 1925 suunnitteleman rakennuksen ensimmäinen osa valmistui vuonna 1925 ja viimeinen osa 1930. Seitsemän-, osittain kuusi- ja kahdeksankerroksisen liike- ja asuintalon katujulkisivut ovat tummaa tiiltä. Jäsentelyltään ne noudattavat samaa koristeellista ja ”konservatiivista” liiketalotyyppiä kuin viereinen 1910-luvulla rakennettu Lackmanin talo (Palmqvist & Sjöström 1911). Pihajulkisivut ovat rapatut ja pihasiipien muodostamat kaksi pihaa ovat eheitä kokonaisuuksia. Pienempi piha, niin kutsuttu Mikonkadun liikepiha on edustava tila, itse asiassa kortteleiden sisäisten liikepihojen edelläkävijä.
Klassisistiset yksityiskohdat (pilastereita, balusterikaide ja uurnia) ovat selkeämmät ja näkyvämmät kuin katujulkisivussa. Talon ulko-ovet ovat alkuperäiset, porrashuoneissa huoneistojen ovet on uusittu. Osa sisäänkäyntien alkuperäisistä kattomaalauksista ja valaisimista on kuitenkin säilynyt. Kaikkien porrashuoneiden hissit uusittiin vuonna 1968.
Kiinteistössä on tehty vuosina 2015-2019 mittavat muutos- ja perusparannustyöt (mm. julkisivut saneerattu, katot uusittu, sisäpiha pinnoitettu, yleiset tilat, viemärilinjat sukitettu, rappukäytävien valaistus ja lattiat päivitetty) kunnioittaen talon henkeä ja arkkitehtuuria. Upeat suihku/pukutilat on rakennettu kellarikerrokseen, josta löytyy myös tilava ja turvallinen polkupyörien säilytystila.
Historiansa aikana Mikonkatu 13 on käynyt läpi moninaisia vaiheita. Alun perin kiinteistö toimi kotina helsinkiläisille yrittäjäperheille ja loisteliaana hotellina arvovieraille. Nykyisin rakennusten tilat palvelevat toimisto- ja liiketiloina.
Mikonkadulla olet aidosti keskustassa ja kaikkien palvelujen äärellä. Ydinkeskustan moninaiset ravintola- ja kahvilapalvelut ovat kävelyetäisyydellä, samoin kuin useat kauppakeskuksetkin. Metro- ja päärautatieasema ovat parin sadan metrin päässä, lähin raitiovaunupysäkki on kiinteistön edustalla, Rautatientorin lukuisat bussit 200 metrin päässä ja lentokentälle matkaa on noin 19 km.
Arkkitehti W. G. Palmqvistin vuosina 1924 - 1925 suunnitteleman rakennuksen ensimmäinen osa valmistui vuonna 1925 ja viimeinen osa 1930. Seitsemän-, osittain kuusi- ja kahdeksankerroksisen liike- ja asuintalon katujulkisivut ovat tummaa tiiltä. Jäsentelyltään ne noudattavat samaa koristeellista ja ”konservatiivista” liiketalotyyppiä kuin viereinen 1910-luvulla rakennettu Lackmanin talo (Palmqvist & Sjöström 1911). Pihajulkisivut ovat rapatut ja pihasiipien muodostamat kaksi pihaa ovat eheitä kokonaisuuksia. Pienempi piha, niin kutsuttu Mikonkadun liikepiha on edustava tila, itse asiassa kortteleiden sisäisten liikepihojen edelläkävijä.
Klassisistiset yksityiskohdat (pilastereita, balusterikaide ja uurnia) ovat selkeämmät ja näkyvämmät kuin katujulkisivussa. Talon ulko-ovet ovat alkuperäiset, porrashuoneissa huoneistojen ovet on uusittu. Osa sisäänkäyntien alkuperäisistä kattomaalauksista ja valaisimista on kuitenkin säilynyt. Kaikkien porrashuoneiden hissit uusittiin vuonna 1968.
Kiinteistössä on tehty vuosina 2015-2019 mittavat muutos- ja perusparannustyöt (mm. julkisivut saneerattu, katot uusittu, sisäpiha pinnoitettu, yleiset tilat, viemärilinjat sukitettu, rappukäytävien valaistus ja lattiat päivitetty) kunnioittaen talon henkeä ja arkkitehtuuria. Upeat suihku/pukutilat on rakennettu kellarikerrokseen, josta löytyy myös tilava ja turvallinen polkupyörien säilytystila.
Historiansa aikana Mikonkatu 13 on käynyt läpi moninaisia vaiheita. Alun perin kiinteistö toimi kotina helsinkiläisille yrittäjäperheille ja loisteliaana hotellina arvovieraille. Nykyisin rakennusten tilat palvelevat toimisto- ja liiketiloina.
Mikonkadulla olet aidosti keskustassa ja kaikkien palvelujen äärellä. Ydinkeskustan moninaiset ravintola- ja kahvilapalvelut ovat kävelyetäisyydellä, samoin kuin useat kauppakeskuksetkin. Metro- ja päärautatieasema ovat parin sadan metrin päässä, lähin raitiovaunupysäkki on kiinteistön edustalla, Rautatientorin lukuisat bussit 200 metrin päässä ja lentokentälle matkaa on noin 19 km.
Vapautuu
Kysy
Rakennusvuosi
1931
Kerros
3
Ota yhteyttä
Infonia Oy
Itsehallintokuja 4, 02600 Espoo
Näytä puhelinnumero
+358404551390
Leena Juhola
Pyydä lisätietoa
