Vuokrataan liiketilat - Helsinki
Kiinteistö Oy Tyynenmerenkatu3, Tyynenmerenkatu 3, Jätkäsaari, 00220 Helsinki #10854856
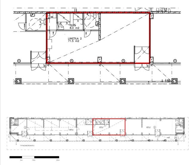
Katutason liiketila Jätkäsaaressa hyvällä sijainnilla, Tyynenmerenkadun alkupäässä.
Osoite
Tyynenmerenkatu 3, 00220 Helsinki
Tilatyyppi
Liiketilaa
71,5 m2
Muuta
Kiinteistö Oy Tyynenmerenkatu 3 sijaitsee Jätkäsaaren trendikkäässä ja elävässä kaupunginosassa Helsingin keskustan läheisyydessä. Tämä vuonna 2014 valmistunut asuin- ja liikekiinteistö on 8-kerroksinen ja sen liiketilat sijaitsevat rakennuksen katutasossa.
Alueen palvelut ovat jo kattavat ja kehittyvät jatkuvasti. Lähistöltä löytyy sekä ravintoloita ja kahviloita. Kävelymatkan päässä ovat Ruoholahden kauppakeskus ja Hietalahden tori sekä sen tunnelmallinen kauppahalli. Alueelle rakentuu kolme koulua, useita päiväkoteja ja mm. oma kirjasto.
Jätkäsaaren alueelle on monipuoliset julkiset ja kevyen liikenteen kulkuyhteydet; raitiolinja 9 pysäkki on aivan talon edessä ja metroasema on kivenheiton päässä Ruoholahdessa.
Alueen palvelut ovat jo kattavat ja kehittyvät jatkuvasti. Lähistöltä löytyy sekä ravintoloita ja kahviloita. Kävelymatkan päässä ovat Ruoholahden kauppakeskus ja Hietalahden tori sekä sen tunnelmallinen kauppahalli. Alueelle rakentuu kolme koulua, useita päiväkoteja ja mm. oma kirjasto.
Jätkäsaaren alueelle on monipuoliset julkiset ja kevyen liikenteen kulkuyhteydet; raitiolinja 9 pysäkki on aivan talon edessä ja metroasema on kivenheiton päässä Ruoholahdessa.
Vapautuu
Kysy
Rakennusvuosi
2014
Kerros
1
Ota yhteyttä
Infonia Oy
Itsehallintokuja 4, 02600 Espoo
Näytä puhelinnumero
+358404551390
Leena Juhola
Pyydä lisätietoa
