Vuokrataan toimistotilat - Helsinki
Kaivotalo, Kaivokatu 10, Helsinki Keskusta - Etu-Töölö, 00100 Helsinki #10854852
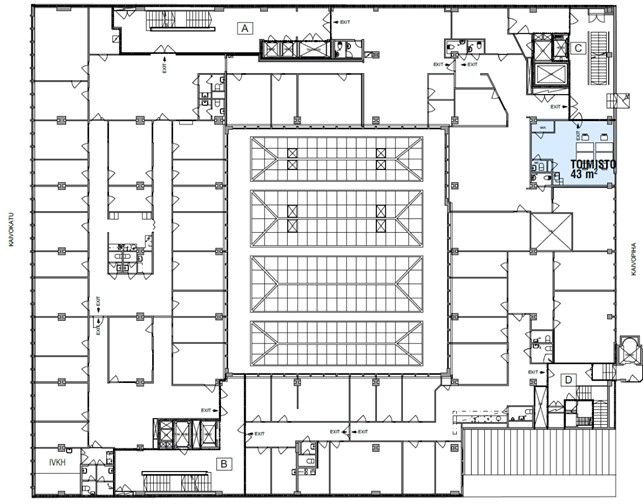
Näppärä minitoimisto vuokrattavissa Kaivotalon 4. kerroksesta Helsingin ydinkeskustassa. Tilasta löytyy pieni varastohuone ja keittiönurkkaus sekä wc.
Osoite
Kaivokatu 10, 00100 Helsinki
Tilatyyppi
Toimistotilaa
43 m2
Muuta
Arkkitehti Pauli Salomaan suunnittelema Kaivotalo valmistui tyylisuuntansa malliesimerkiksi vuonna 1955. Kaivotalon ensimmäisessä ja toisessa kerroksessa sijaitsee liiketiloja, ylemmät kerrokset toimivat toimistotiloina.
Kaivotalossa parasta on sen keskeinen sijainti. Kulkuyhteydet Kaivotalolle ovat erinomaiset: käytännössä kaikki julkisen liikenteen muodot kulkevat aivan kiinteistön vierestä, oli kyse sitten alueen sisäisistä yhteyksistä tai kaukoliikenteestä. Lisäksi vuokranantajan yhteyshenkilöt ovat samassa rakennuksessa.
Kiinteistöä ympäröivät kaupungin monipuolisimmat palvelut, kuten Kauppakeskus City Center ja Kaivopihan monipuolinen kauppa- ja ravintolatarjonta. Citykäytävää pitkin olet minuutissa Stockmannilla ja Eliel Saarisen suunnittelema ikoninen päärautatieasema on toimistosta kirjaimellisesti kivenheiton päässä, Kaivokadun toisella puolella. Kaivotalossa tunnet olevasti aidosti keskustassa.
Näkymät etenkin ylempien kerrosten toimistohuoneista ovat huikeat avautuen Kaivokadun ja rautatieaseman yli pitkälle pohjoiseen.
Kaivotalossa parasta on sen keskeinen sijainti. Kulkuyhteydet Kaivotalolle ovat erinomaiset: käytännössä kaikki julkisen liikenteen muodot kulkevat aivan kiinteistön vierestä, oli kyse sitten alueen sisäisistä yhteyksistä tai kaukoliikenteestä. Lisäksi vuokranantajan yhteyshenkilöt ovat samassa rakennuksessa.
Kiinteistöä ympäröivät kaupungin monipuolisimmat palvelut, kuten Kauppakeskus City Center ja Kaivopihan monipuolinen kauppa- ja ravintolatarjonta. Citykäytävää pitkin olet minuutissa Stockmannilla ja Eliel Saarisen suunnittelema ikoninen päärautatieasema on toimistosta kirjaimellisesti kivenheiton päässä, Kaivokadun toisella puolella. Kaivotalossa tunnet olevasti aidosti keskustassa.
Näkymät etenkin ylempien kerrosten toimistohuoneista ovat huikeat avautuen Kaivokadun ja rautatieaseman yli pitkälle pohjoiseen.
Vapautuu
Kysy
Kerros
4
Ota yhteyttä
Infonia Oy
Itsehallintokuja 4, 02600 Espoo
Näytä puhelinnumero
+358404551390
Leena Juhola
Pyydä lisätietoa
