Vuokrataan toimistotilat - Espoo
Keilasatama, Keilasatama 5, 02150 Espoo #10854842
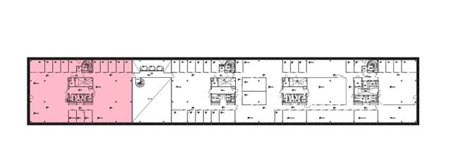
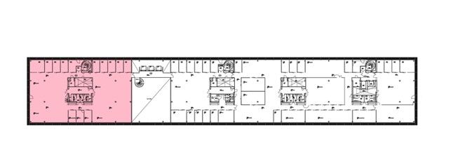
7. kerroksen näköalatoimisto Keilasatamassa
Osoite
Keilasatama 5, 02150 Espoo
Tilatyyppi
Toimistotilaa
693 m2
Muuta
Keilasatama on ikoninen maamerkki Espoon Keilaniemessä. Tyylikäs ja palveluiltaan laadukas toimistotalo sijaitsee Keilaniemen parhaalla paikalla metroaseman läheisyydessä.
Keilasatamassa on laajat ja monipuoliset palvelut. Vuokralaisten käytössä on kuntosali ja erillisveloituksella personal trainer -palvelut. Työntekijöitä ja kokoustajia palvelee monipuolinen ravintola ja kahvila.
Kiinteistössä on tiloja yhdeksässä kerroksessa eri kokoluokan yrityksille 300:sta neliöstä ylöspäin. Talon toisessa kerroksessa on laaja neuvotteluhuonekeskus, jossa on yhteensä 21 neuvottelutilaa 8:n–200:n henkilön tilaisuuksiin. Yleiset tilat on uudistettu vuoden 2022 alussa.
Keskeinen sijainti Kehä 1:n ja Länsiväylän vieressä takaa hyvät julkisen liikenteen palvelut. Lisäksi kohteessa ja sen välittömässä läheisyydessä on runsaasti pysäköintitilaa henkilökunnan käyttöön.
Keilasatamassa on laajat ja monipuoliset palvelut. Vuokralaisten käytössä on kuntosali ja erillisveloituksella personal trainer -palvelut. Työntekijöitä ja kokoustajia palvelee monipuolinen ravintola ja kahvila.
Kiinteistössä on tiloja yhdeksässä kerroksessa eri kokoluokan yrityksille 300:sta neliöstä ylöspäin. Talon toisessa kerroksessa on laaja neuvotteluhuonekeskus, jossa on yhteensä 21 neuvottelutilaa 8:n–200:n henkilön tilaisuuksiin. Yleiset tilat on uudistettu vuoden 2022 alussa.
Keskeinen sijainti Kehä 1:n ja Länsiväylän vieressä takaa hyvät julkisen liikenteen palvelut. Lisäksi kohteessa ja sen välittömässä läheisyydessä on runsaasti pysäköintitilaa henkilökunnan käyttöön.
Vapautuu
Kysy
Rakennusvuosi
2001
Kerros
7
Ota yhteyttä
Infonia Oy
Itsehallintokuja 4, 02600 Espoo
Näytä puhelinnumero
+358404551390
Leena Juhola
Pyydä lisätietoa
