Vuokrataan toimistotilat - Helsinki
Wreden talo (KOy Pohjoisesplanadi 35 - Mikonkatu 2), Pohjoisesplanadi 35, Helsinki Keskusta - Etu-Töölö, 00100 Helsinki #10854840
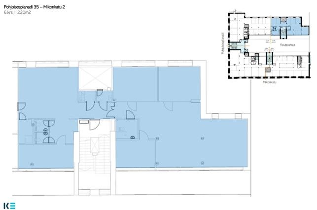
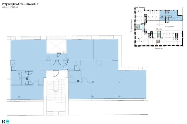
Tyylikäs kokonaisuus ylimmän kerroksen huoneistossa, joka juuri valmistunut peruskorjauksesta.
Osoite
Pohjoisesplanadi 35, 00100 Helsinki
Tilatyyppi
Toimistotilaa
224 m2
Muuta
Gaselli-korttelin eteläpäädyssä oleva kiinteistö on loistavalla paikalla Helsingin ydinkeskustassa viihtyisän Esplanadin puistokadun varrella. Osoitteessa Pohjoisesplanadi 35/Mikonkatu 2 sijaitsee arkkitehti K. A. Wreden suunnittelema ja rakennusmestari J. H. Heleniuksen vuonna 1888 rakennuttama, alun perin viisikerroksinen liike- ja asuintalo. Sen halki kulkee Wreden pasaasi, joka oli Helsingin ensimmäinen kauppakuja.
Pohjoisesplanadin ja Mikonkadun kulmaan sijoittuvassa kiinteistössä on nykyisin laadukkaita toimitiloja monen kokoisille yrityksille. Uudet nykyaikaiset toimistot ovat vertaansa vailla tunnelmallisessa ja arvokkaassa rakennuksessa. Kohteessa on tehokkaat tilaratkaisut, jotka voi joustavasti hyödyntää monitilaympäristönä. Tässä arvokiinteistössä tehdyt perusparannustyöt on toteutettu kiinteistön arkkitehtuuria ja arvokasta historiaa kunnioittaen. Tiloissa on mm. koneellinen ilmanvaihto ja jäähdytys.
Helsingin ydinkeskustan ravintola- ja kahvilatarjoama, sekä laaja muiden kaupallisten ja kulttuuripalveluiden kattaus on lyhyen kävelymatkan sisällä. Kaikki julkisen liikenteen yhteydet parin minuutin kävelymatkan sisällä. Lähin autoilijoita palveleva pysäköintihalli sijaitsee Kluuvissa, johon sisäänajo Kaisaniemestä tai Fabianinkadulta, Kivenheiton päässä on myös kulku mm. Stockmannin pysäköintihalliin.
Pohjoisesplanadin ja Mikonkadun kulmaan sijoittuvassa kiinteistössä on nykyisin laadukkaita toimitiloja monen kokoisille yrityksille. Uudet nykyaikaiset toimistot ovat vertaansa vailla tunnelmallisessa ja arvokkaassa rakennuksessa. Kohteessa on tehokkaat tilaratkaisut, jotka voi joustavasti hyödyntää monitilaympäristönä. Tässä arvokiinteistössä tehdyt perusparannustyöt on toteutettu kiinteistön arkkitehtuuria ja arvokasta historiaa kunnioittaen. Tiloissa on mm. koneellinen ilmanvaihto ja jäähdytys.
Helsingin ydinkeskustan ravintola- ja kahvilatarjoama, sekä laaja muiden kaupallisten ja kulttuuripalveluiden kattaus on lyhyen kävelymatkan sisällä. Kaikki julkisen liikenteen yhteydet parin minuutin kävelymatkan sisällä. Lähin autoilijoita palveleva pysäköintihalli sijaitsee Kluuvissa, johon sisäänajo Kaisaniemestä tai Fabianinkadulta, Kivenheiton päässä on myös kulku mm. Stockmannin pysäköintihalliin.
Vapautuu
Kysy
Rakennusvuosi
1888
Kerros
6
Ota yhteyttä
Infonia Oy
Itsehallintokuja 4, 02600 Espoo
Näytä puhelinnumero
+358404551390
Leena Juhola
Pyydä lisätietoa
