Vuokrataan toimistotilat - Helsinki
Rantatie Business Park, Hermannin Rantatie 8, Verkkosaari, 00580 Helsinki #10854776
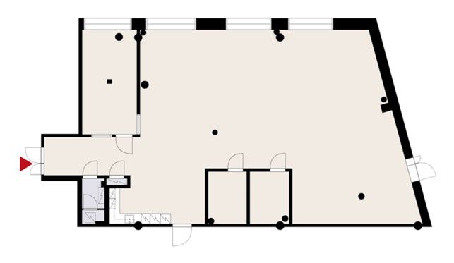
Valoisa ja neliöitään isomman oloinen uudehko toimistotila, jossa on muutama huone, neuvottelutila ja integroitu keittiö. Suuret lattiasta kattoon olevat ikkunat antavat valoa ja avaruutta. Yhdistettävissä viereiseen n. 1055m2 tilaan.
Osoite
Hermannin Rantatie 8, 00580 Helsinki
Tilatyyppi
Toimistotilaa
208 m2
Muuta
Rantatie Business Park on moderni, linjakas ja tyylikäs talo Kalasataman parhaalla paikalla Hermannin rantatien varrella. Uudet, laadukkaat tilat ovat helposti muunneltavissa vastaamaan hyvinkin erilaisten asiakkaiden tarpeita aina pienyrittäjistä suuryrityksiin. Rantatie Business Park koostuu kolmesta eri osasta: Original, Kasvu ja Loikka. Yhteisten neuvottelutilojen punaisena lankana toimii merihenkisyys. Ravintola Lepuuttaja palvelee sekä talon asiakkaita että vierailevia ruokailijoita.
Vastuullisuuteen on kiinnitetty erityistä huomiota. Laajennusosat Kasvu ja Loikka ovat saaneet LEED® Gold -ympäristösertifikaatin osoituksena rakennusvaiheessa tehdyistä kestävistä päätöksistä mm. materiaalivalintojen, vedenkäytön ja tavoiteltavan energiatehokkuuden osalta. Laajennusosa Loikan katolla sijaitsevat aurinkopaneelit tuottavat vuosittain noin 7-8% Loikassa käytetystä sähköstä.
Kiinteistössä on käytössä uusiutuvilla luonnonvaroilla tuotettua, alkuperävarmennettua sähköä. Kiinteistön jäähdytykseen käytetään päästötöntä kaukokylmää, ja kiinteistön lämmitykseen käytettävästä energiasta 40% tuotetaan fossiilittomilla lähteillä. Tavoitteena on että vuodesta 2024 kiinteistön käytönaikainen energia on tuotettu kokonaan ei-fossiilisilla lähteillä.
Rantatie Business Parkin tavoitettavuus julkisilla liikennevälineillä on erinomainen, ja tuleva Kalasatamasta-Pasilaan raitiotiehanke tuo raitiovaunuyhteyden kiinteistön välittömään läheisyyteen. Kannustamme ilmastoystävälliseen liikkumiseen, siksi kiinteistössä on edellytykset niin aktiivipyöräilijöille kuin sähköautoilijoillekin.
Rantatie Business Park sijaitsee Kalasataman kehittyvällä ja trendikkäällä alueella hyvien kulkuyhteyksien varrella. Kalasatamasta rakentuu mittava, monipuolinen ja moderni kaupunginosa.
Pääsisäänkäynti: Verkkosaarenkatu 5
Vastuullisuuteen on kiinnitetty erityistä huomiota. Laajennusosat Kasvu ja Loikka ovat saaneet LEED® Gold -ympäristösertifikaatin osoituksena rakennusvaiheessa tehdyistä kestävistä päätöksistä mm. materiaalivalintojen, vedenkäytön ja tavoiteltavan energiatehokkuuden osalta. Laajennusosa Loikan katolla sijaitsevat aurinkopaneelit tuottavat vuosittain noin 7-8% Loikassa käytetystä sähköstä.
Kiinteistössä on käytössä uusiutuvilla luonnonvaroilla tuotettua, alkuperävarmennettua sähköä. Kiinteistön jäähdytykseen käytetään päästötöntä kaukokylmää, ja kiinteistön lämmitykseen käytettävästä energiasta 40% tuotetaan fossiilittomilla lähteillä. Tavoitteena on että vuodesta 2024 kiinteistön käytönaikainen energia on tuotettu kokonaan ei-fossiilisilla lähteillä.
Rantatie Business Parkin tavoitettavuus julkisilla liikennevälineillä on erinomainen, ja tuleva Kalasatamasta-Pasilaan raitiotiehanke tuo raitiovaunuyhteyden kiinteistön välittömään läheisyyteen. Kannustamme ilmastoystävälliseen liikkumiseen, siksi kiinteistössä on edellytykset niin aktiivipyöräilijöille kuin sähköautoilijoillekin.
Rantatie Business Park sijaitsee Kalasataman kehittyvällä ja trendikkäällä alueella hyvien kulkuyhteyksien varrella. Kalasatamasta rakentuu mittava, monipuolinen ja moderni kaupunginosa.
Pääsisäänkäynti: Verkkosaarenkatu 5
Vapautuu
Kysy
Rakennusvuosi
2019
Kerros
5
Ota yhteyttä
Infonia Oy
Itsehallintokuja 4, 02600 Espoo
Näytä puhelinnumero
+358404551390
Leena Juhola
Pyydä lisätietoa
