Vuokrataan toimistotilat - Helsinki
KOy Helsingin Strömberginaukio, Hiomotie 32, Pitäjänmäen Teollisuusalue, 00380 Helsinki #10854760
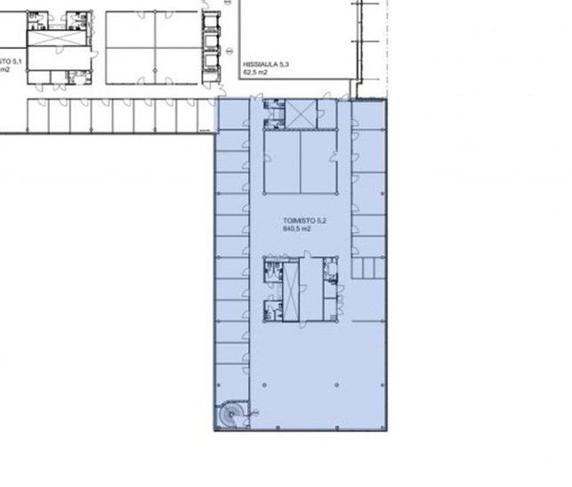
2. kerroksen avara ja valoisa toimistokokonaisuus.
Osoite
Hiomotie 32, 00380 Helsinki
Tilatyyppi
Toimistotilaa
840,5 m2
Muuta
KOy Strömberginaukio on muuttanut nimeään ja on nyt Pitäjänmäen Voltti. Helsingin Pitäjänmäessä sijaitseva Strömbergin alue on nimetty suomalaisen sähkötekniikan pioneerin Gottfrid Strömbergin mukaan. Sähkön maailma on antanut inspiraation myös Pitäjänmäen Voltille - tai lyhyemmin Voltille, jonka näyttävän julkisivun sisältä löydät modernit työtilat.
Kevan rakennuttama Voltin rakennus valmistui vuonna 1999 ja se pistettiin täysin uuteen uskoon vuonna 2020. Nyt kiinteistön 26 716 neliömetriä tarjoavat vuokralaisille niin toimivat tilat tehokkaaseen työskentelyyn kuin viihtyisät yleiset tilat monipuoliseen toimintaan. Tiloja on kuudessa kerroksessa eri kokoluokan yrityksille alkaen 45 neliöstä noin 1 800 neliöön.
Rakennuksen palvelut kattavat kaiken neuvottelukeskuksesta aina ravintola- ja catering-palveluihin sekä kuntosaliin ja edustussaunaan. Talon ensimmäisessä kerroksessa toimii täysin uudistettu 170 asiakaspaikan lounasravintola Kuohu, jonka palvelut tarjoaa Antell Oy.
Alueella on hyvät julkisen liikenteen palvelut. Pitäjänmäen ja Vihdintien bussilinjat sekä Valimon junaseisake mahdollistavat sujuvan kulkemisen alueelle ja raidejokerin valmistuminen parantaa liikenneyhteyksiä entisestään. Kiinteistössä on lisäksi yli 200 autopaikan pysäköintihalli ja sisäänkäynnin edustalla 24 vieraspaikkaa.
Kevan rakennuttama Voltin rakennus valmistui vuonna 1999 ja se pistettiin täysin uuteen uskoon vuonna 2020. Nyt kiinteistön 26 716 neliömetriä tarjoavat vuokralaisille niin toimivat tilat tehokkaaseen työskentelyyn kuin viihtyisät yleiset tilat monipuoliseen toimintaan. Tiloja on kuudessa kerroksessa eri kokoluokan yrityksille alkaen 45 neliöstä noin 1 800 neliöön.
Rakennuksen palvelut kattavat kaiken neuvottelukeskuksesta aina ravintola- ja catering-palveluihin sekä kuntosaliin ja edustussaunaan. Talon ensimmäisessä kerroksessa toimii täysin uudistettu 170 asiakaspaikan lounasravintola Kuohu, jonka palvelut tarjoaa Antell Oy.
Alueella on hyvät julkisen liikenteen palvelut. Pitäjänmäen ja Vihdintien bussilinjat sekä Valimon junaseisake mahdollistavat sujuvan kulkemisen alueelle ja raidejokerin valmistuminen parantaa liikenneyhteyksiä entisestään. Kiinteistössä on lisäksi yli 200 autopaikan pysäköintihalli ja sisäänkäynnin edustalla 24 vieraspaikkaa.
Vapautuu
Kysy
Rakennusvuosi
1999
Kerros
2
Ota yhteyttä
Infonia Oy
Itsehallintokuja 4, 02600 Espoo
Näytä puhelinnumero
+358404551390
Leena Juhola
Pyydä lisätietoa
