Vuokrataan toimistotilat - Helsinki
Mannerheimintie 15 b, Mannerheimintie 15 B, Taka-Töölö, 00260 Helsinki #10854741
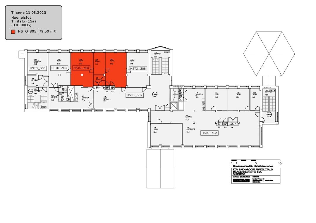
Tiilitalon pientoimisto jossa keittiö yhteiskäytössä. Toimisto on n 70 m2 ja 9,5m2 on jyvitettyä yhteistilaa.
Osoite
Mannerheimintie 15 B, 00260 Helsinki
Tilatyyppi
Toimistotilaa
79,5 m2
Muuta
Oopperatalon ja Mannerheimintien välissä sijaitseva Mannerheimintie 15 koostuu kahdesta rakennuksesta, A ja B, joista A on vuonna 1951 rakennettu entinen Töölön Sokeritehtaan punatiilinen toimistotalo ja B vuonna 1974 rakennettu noin 7000m² lasinen pääkonttorirakennus. Ylimmistä kerroksista on upeat näkymät Töölönlahdelle ja Hesperianpuistoon. Molemmissa taloissa on kaukokylmäjäähdytys.
Mannerheimintien, Runeberginkadun ja Helsinginkadun risteyksestä on erinomaiset liikenneyhteydet joka suuntaan. Lähietäisyydeltä löytyvät myös mm. Scandic Park Helsinki ja Crowne Plaza- hotellit ja alueen runsas kulttuuri- ja ravintolatarjonta, ydinkeskustaan on matkaa alle kaksi kilometriä.
Kiinteistöllä vuokrattavissa parkkipaikkoja sekä hallista että piha-alueelta.
Rakennusvuosi 1974
Mannerheimintien, Runeberginkadun ja Helsinginkadun risteyksestä on erinomaiset liikenneyhteydet joka suuntaan. Lähietäisyydeltä löytyvät myös mm. Scandic Park Helsinki ja Crowne Plaza- hotellit ja alueen runsas kulttuuri- ja ravintolatarjonta, ydinkeskustaan on matkaa alle kaksi kilometriä.
Kiinteistöllä vuokrattavissa parkkipaikkoja sekä hallista että piha-alueelta.
Rakennusvuosi 1974
Vapautuu
Kysy
Kerros
3
Ota yhteyttä
Infonia Oy
Itsehallintokuja 4, 02600 Espoo
Näytä puhelinnumero
+358404551390
Leena Juhola
Pyydä lisätietoa
