Vuokrataan toimistotilat - Helsinki
Suolakivenkatu 1, Herttoniemi, 00810 Helsinki #10854734
Uudenveroista toimisto-, kuntosali-, tai myymälätilaa
Osoite
Suolakivenkatu 1, 00810 Helsinki
Tilatyyppi
Toimistotilaa
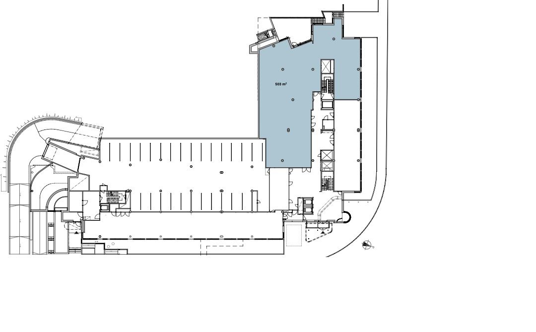
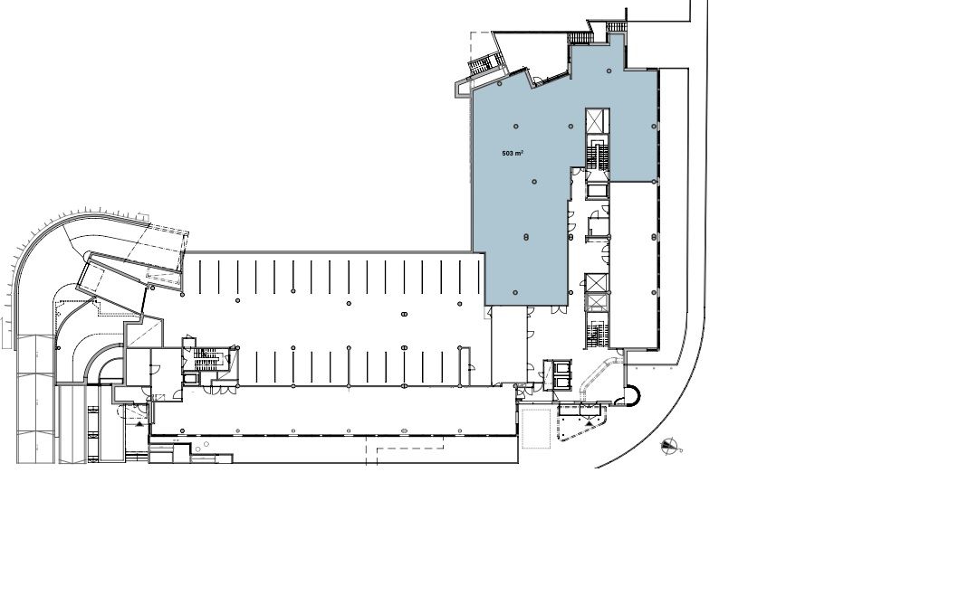
503 m2
Muuta
Upean merinäköalan äärelle rakennettu entinen Rautaruukin pääkonttori Herttoniemenrannassa saneerataan kattavasti vastaamaan tämän päivän vaatimuksia. Kiinteistön saneerauksen yhteydessä mm. tilasuunnitelmiin ja pintamaterialeihin on vielä mahdollista vaikuttaa. Rakennettavat tilat ovat monipuolisesti muunneltavissa toimistotilojen lisäksi mm. erilaisten lääkäri- tai kuntoutusasemien
toimintaan soveltuviksi. Kiinteistössä on valmiina toimistotilojen lisäksi Esperin hoivatoimintaa.
Suolakivenkatu 1 sijaitsee n 500 metroasemalta, lähimmälle bussipysäkille on n. 100 m, juna-asemalle n. 6 km ja lentokentälle n. 15 km.
toimintaan soveltuviksi. Kiinteistössä on valmiina toimistotilojen lisäksi Esperin hoivatoimintaa.
Suolakivenkatu 1 sijaitsee n 500 metroasemalta, lähimmälle bussipysäkille on n. 100 m, juna-asemalle n. 6 km ja lentokentälle n. 15 km.
Vapautuu
Kysy
Kerros
1
Ota yhteyttä
Infonia Oy
Itsehallintokuja 4, 02600 Espoo
Näytä puhelinnumero
+358404551390
Leena Juhola
Pyydä lisätietoa
