Vuokrataan toimistotilat - Vantaa
Colony Airport, Tietotie 9, Kirkonkylä-Veromäki, 01530 Vantaa #10854732
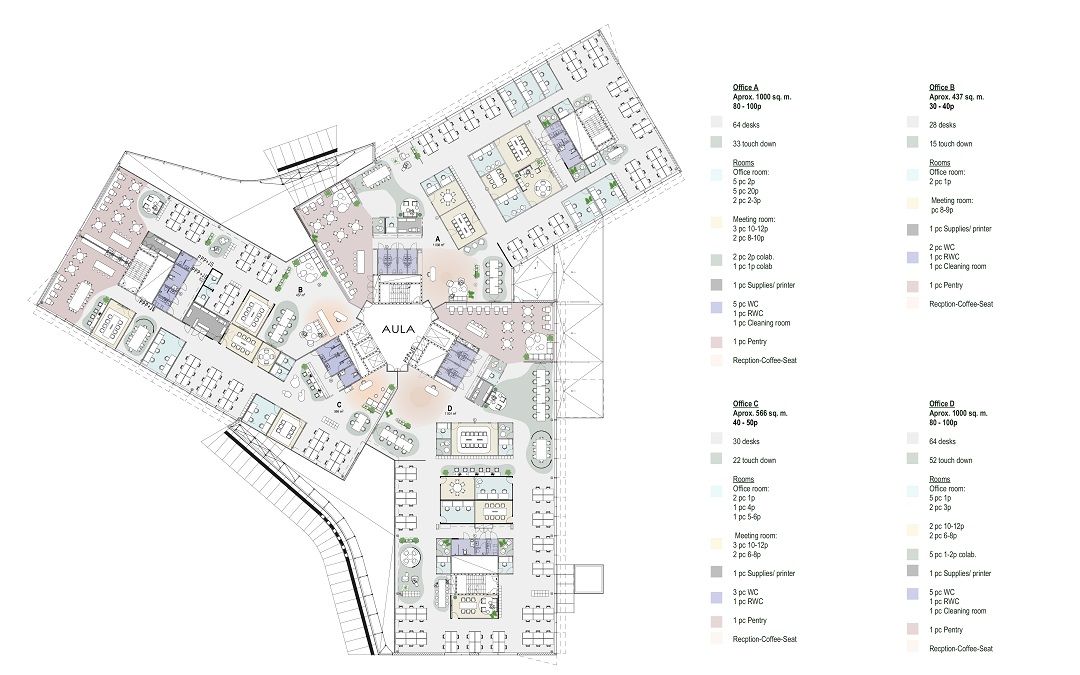
Huom! 1.12.2025 vapautuva hieno 3. kerroksen toimistohuoneisto yhdessä Aviapoliksen parhaimmista sijainneista!
Osoite
Tietotie 9, 01530 Vantaa
Tilatyyppi
Toimistotilaa
1000 m2
Muuta
COLONY AIRPORT on korkealaatuinen toimistorakennus, jossa on joustavat pohjaratkaisut ja runsaasti mukavuuksia, kuten kuntosali, kattoterassin sauna, kokoustilat ja laadukas ravintola. Tilat on rakennettu alusta alkaen joustavuutta ajatellen ja korkeimman mahdollisen laatutason mukaisesti pääkonttorin tiloiksi.
Rakennus sijaitsee Helsinki-Vantaan kansainvälisen lentoaseman vieressä Aviapoliksen alueella, jota kehitetään voimakkaasti: aluesuunnittelun keskeisenä tähtäimenä on luoda alueesta tiivis, käveltävä lentokenttäkaupunki, jossa on asuinkiinteistöjä jopa 28 000 asukkaalle, runsaasti palveluita sekä luontoa. Toimitiloista on hyvät kulkuyhteydet joka suuntaan pääkaupunkiseutua: lähijuna-asema ja tuleva pikaraitiotiepysäkki sijaitsevat aivan vieressä. Kiinteistöllä on myös poikkeuksellisen suuri pysäköintikapasiteetti, josta pääsee sujuvasti Kehä 3-tielle ja sitä kautta kaikille pääteille.
Rakennuksella on LEED Platinum -sertifikaatti ja se on poikkeuksellisen kattavasti ESG-standardien mukainen. Rakennus on varustettu geotermisellä lämmöntuotannolla, aurinkopaneeleilla ja se on energiatehokkuudessa parasta A-luokkaa.
Rakennus sijaitsee Helsinki-Vantaan kansainvälisen lentoaseman vieressä Aviapoliksen alueella, jota kehitetään voimakkaasti: aluesuunnittelun keskeisenä tähtäimenä on luoda alueesta tiivis, käveltävä lentokenttäkaupunki, jossa on asuinkiinteistöjä jopa 28 000 asukkaalle, runsaasti palveluita sekä luontoa. Toimitiloista on hyvät kulkuyhteydet joka suuntaan pääkaupunkiseutua: lähijuna-asema ja tuleva pikaraitiotiepysäkki sijaitsevat aivan vieressä. Kiinteistöllä on myös poikkeuksellisen suuri pysäköintikapasiteetti, josta pääsee sujuvasti Kehä 3-tielle ja sitä kautta kaikille pääteille.
Rakennuksella on LEED Platinum -sertifikaatti ja se on poikkeuksellisen kattavasti ESG-standardien mukainen. Rakennus on varustettu geotermisellä lämmöntuotannolla, aurinkopaneeleilla ja se on energiatehokkuudessa parasta A-luokkaa.
Vapautuu
01.12.2025
Rakennusvuosi
2013
Kerros
3
Ota yhteyttä
Infonia Oy
Itsehallintokuja 4, 02600 Espoo
Näytä puhelinnumero
+358404551390
Leena Juhola
Pyydä lisätietoa
