Vuokrataan toimistotilat - Helsinki
HTC Santa Maria, Tammasaarenkatu 5, Kamppi - Ruoholahti, 00180 Helsinki #10854703
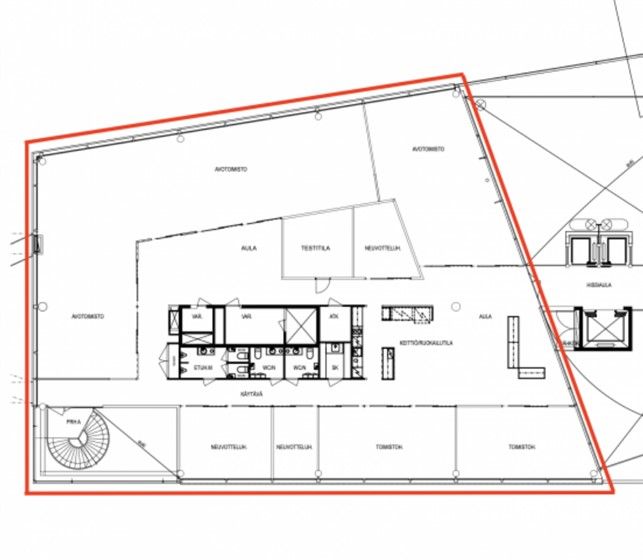
Vuokrataan 2. kerroksen toimistohuoneisto.
Osoite
Tammasaarenkatu 5, 00180 Helsinki
Tilatyyppi
Toimistotilaa
571 m2
Muuta
HTC Helsinki on upealla paikalla merellisessä Ruoholahdessa sijaitseva Business Park, joka tarjoaa tasokkaat toimistotilat hyvien palveluiden ja kulkuyhteyksien äärellä lähellä Helsingin ydinkeskustaa. Värikkään rakennuskokonaisuuden suunnitteli professori Kai Wartiainen arkkitehtiryhmineen ja se valmistui vuonna 2001.
HTC Helsingissä on viisi erillistä rakennusta, jotka on nimetty löytöretkeilijöiden veneiden mukaan: Nina, Pinta ja Santa Maria, Vega ja Kon-Tiki. Rakennukset tunnetaan arkkitehtipalkintoja voittaneista kilpailuista.
HTC Helsinki tarjoaa kaikille vuokralaisilleen ja kävijöilleen aulapalveluita, kaksi ravintolaa, neuvottelu- ja edustustiloja catering-palveluineen, auditorion, kuntosalin ym. huipputasoisia business park -palveluita. HTC Helsinkiä palvelee lisäksi yhteinen pysäköintihalli.
Kiinteistö sijaitsee hyvien kulkuyhteyksien varrella, kävelymatkan päässä metroasemalta.
HTC Helsingissä on viisi erillistä rakennusta, jotka on nimetty löytöretkeilijöiden veneiden mukaan: Nina, Pinta ja Santa Maria, Vega ja Kon-Tiki. Rakennukset tunnetaan arkkitehtipalkintoja voittaneista kilpailuista.
HTC Helsinki tarjoaa kaikille vuokralaisilleen ja kävijöilleen aulapalveluita, kaksi ravintolaa, neuvottelu- ja edustustiloja catering-palveluineen, auditorion, kuntosalin ym. huipputasoisia business park -palveluita. HTC Helsinkiä palvelee lisäksi yhteinen pysäköintihalli.
Kiinteistö sijaitsee hyvien kulkuyhteyksien varrella, kävelymatkan päässä metroasemalta.
Vapautuu
Kysy
Rakennusvuosi
2001
Kerros
2
Ota yhteyttä
Infonia Oy
Itsehallintokuja 4, 02600 Espoo
Näytä puhelinnumero
+358404551390
Leena Juhola
Pyydä lisätietoa
