Vuokrataan toimistotilat - Helsinki
Gaselli, Mikonkatu 4, Helsinki Keskusta - Etu-Töölö, 00100 Helsinki #10854702
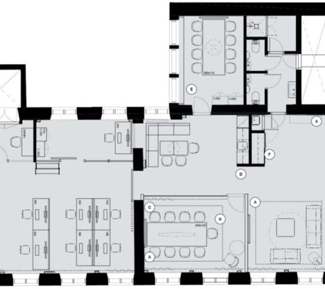
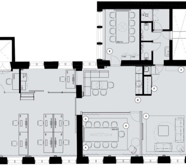
Upean arvokiinteistön 3. kerroksen ns. läpitalon toimistohuoneisto.
Osoite
Mikonkatu 4, 00100 Helsinki
Tilatyyppi
Toimistotilaa
170 m2
Muuta
Historiallisesti arvokas kiinteistö Gaselli-korttelissa kaikkien ydinkeskustan palveluiden äärellä osoitteessa Mikonkatu 4 / Aleksanterinkatu 46.
Kiinteistö Oy Gaselli on vuonna 1892 valmistunut K.A. Wreden suunnittelema ja Julius Tallbergin rakennuttama arvokiinteistö. Kiinteistö sijaitsee Helsingin ydinkeskustan parhaimmalla paikalla Gaselli-korttelissa, Aleksanterinkadun varrella. Parannustyöt on saatu valmiiksi ja ne on tehty kiinteistön arkkitehtuuria ja arvokasta historiaa kunnioittaen. Uudet toimistotilat tunnelmallisessa ja arvokkaassa rakennuksessa ovat vertaansa vailla.
Aleksanterinkadun ja Mikonkadun kulmaan sijoittuvassa kiinteistössä on laadukkaita toimistotiloja monen kokoisille yrityksille. Kohteessa on tehokkaat tilaratkaisut, jotka voi joustavasti hyödyntää monitilaympäristönä. Tiloissa on koneellinen ilmanvaihto ja jäähdytys.
Lähin autoilijoita palveleva pysäköintihalli sijaitsee Kluuvissa, sisäänajo Kaisaniemestä tai Fabianinkadulta. Kaikki julkisen liikenteen yhteydet ovat vain lyhyen kävelymatkan päässä.
Kiinteistö Oy Gaselli on vuonna 1892 valmistunut K.A. Wreden suunnittelema ja Julius Tallbergin rakennuttama arvokiinteistö. Kiinteistö sijaitsee Helsingin ydinkeskustan parhaimmalla paikalla Gaselli-korttelissa, Aleksanterinkadun varrella. Parannustyöt on saatu valmiiksi ja ne on tehty kiinteistön arkkitehtuuria ja arvokasta historiaa kunnioittaen. Uudet toimistotilat tunnelmallisessa ja arvokkaassa rakennuksessa ovat vertaansa vailla.
Aleksanterinkadun ja Mikonkadun kulmaan sijoittuvassa kiinteistössä on laadukkaita toimistotiloja monen kokoisille yrityksille. Kohteessa on tehokkaat tilaratkaisut, jotka voi joustavasti hyödyntää monitilaympäristönä. Tiloissa on koneellinen ilmanvaihto ja jäähdytys.
Lähin autoilijoita palveleva pysäköintihalli sijaitsee Kluuvissa, sisäänajo Kaisaniemestä tai Fabianinkadulta. Kaikki julkisen liikenteen yhteydet ovat vain lyhyen kävelymatkan päässä.
Vapautuu
Kysy
Rakennusvuosi
1892
Kerros
4
Ota yhteyttä
Infonia Oy
Itsehallintokuja 4, 02600 Espoo
Näytä puhelinnumero
+358404551390
Leena Juhola
Pyydä lisätietoa
