Vuokrataan toimistotilat - Helsinki
Kiinteistö Oy Pohjoisesplanadi 37, Pohjoisesplanadi 37, Helsinki Keskusta - Etu-Töölö, 00100 Helsinki #10854700
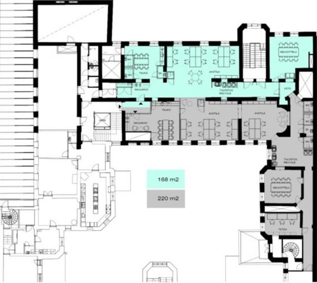
Tämä peruskorjattava 4. kerroksen huoneisto (168m2 tai 220m2) sijaitsee sisäpihan puolella uuden kahvila- ja ravintolakeskittymän yläpuolella. Sisäpiha katetaan kauniilla verkkomaisella katteella ja muodostaen siitä viihtyisää ja lämmintä sisätilaa.
Osoite
Pohjoisesplanadi 37, 00100 Helsinki
Tilatyyppi
Toimistotilaa
168 m2
Muuta
Pohjoisesplanadi 37 on haluttu kohde liike-elämän, hallinnon ja kulttuurin kohtauspisteessä Helsingin ydinkeskustassa. Vilkas Esplanadi on parasta mahdollista ympäristöä menestyvälle yritykselle. Kaikki keskusta-alueen monipuoliset palvelut ovat lähettyvillä.
Taidokkaasti saneeratussa arvokiinteistössä on tasokasta liike- ja toimistotilaa, seitsemän kerrosta ja kellaritilat. Tilat ovat jaettavissa toimistomoduulijaon mukaisiin tiloihin, joiden huoneistomuutokset on mahdollista toteuttaa vanhan rakennuksen ehdoin. Talo on saneerattu nykyaikaisen talotekniikan vaatimustason täyttäväksi.
Lähin autoilijoita palveleva pysäköintihalli sijaitsee Kluuvissa, sisäänajo Kaisaniemestä tai Fabianinkadulta. Julkisen liikenteen yhteydet ovat vain lyhyen kävelymatkan päässä.
Taidokkaasti saneeratussa arvokiinteistössä on tasokasta liike- ja toimistotilaa, seitsemän kerrosta ja kellaritilat. Tilat ovat jaettavissa toimistomoduulijaon mukaisiin tiloihin, joiden huoneistomuutokset on mahdollista toteuttaa vanhan rakennuksen ehdoin. Talo on saneerattu nykyaikaisen talotekniikan vaatimustason täyttäväksi.
Lähin autoilijoita palveleva pysäköintihalli sijaitsee Kluuvissa, sisäänajo Kaisaniemestä tai Fabianinkadulta. Julkisen liikenteen yhteydet ovat vain lyhyen kävelymatkan päässä.
Vapautuu
Kysy
Rakennusvuosi
1920
Kerros
4
Ota yhteyttä
Infonia Oy
Itsehallintokuja 4, 02600 Espoo
Näytä puhelinnumero
+358404551390
Leena Juhola
Pyydä lisätietoa
